Maison neuve à
Bouquetot (27310) Référence : KB2353782_3

Prix du projet : Maison avec Terrain

prix 360 000 €

  • 7 pièces
  • 5 chambres
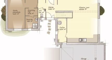
  • Surface maison 170 m2

VENTE : maison de 7 pièces (170 m²) à Bouquetot
IDÉALEMENT SITUÉE - MAISON 7 PIÈCES NEUVE
En vente à 35 km de la Manche et à 25 km de Rouen, ayez le coup de coeur pour cette maison de 7 pièces de plain-pied de 170 m², idéalement située dans Bouquetot (27310). Son intérieur comporte cinq chambres, une cuisine et trois salles de bains.
Le terrain de la propriété est de 790 m².
La maison est neuve.
La maison se situe dans un quartier attractif. Une école primaire y est implantée. Niveau transports en commun, on trouve la gare Bourgtheroulde-Thuit-Hébert à moins de 10 minutes en voiture. L'autoroute A13 est accessible à 3 km. Il y a un tennis à quelques minutes de la maison.
Elle est à vendre pour la somme de 360 000 €.
N'hésitez pas à prendre contact avec notre agence (BAZIZ Kamel : 07-80-36-63-82) pour toute question sur la maison. Faites de vos projets immobiliers une réalité avec Maisons Balency Boos.

Annonce proposée par un Agent Commercial Partenaire.

Mentions légales

Terrain proposé par un partenaire foncier selon disponibilités et autorisation de publicité au prix de 69 000 €. Hors droit d'enregistrement et frais de notaire. Maison proposée, avec un contrat de construction de maison individuelle, dans le cadre de la loi du 19/12/1990, au prix de 291 000 € (Hors branchements et raccordements, papiers peints, peintures, revêtement de sol dans les chambres, qui sont chiffrés dans les travaux qui restent à charge du client. Tarif modifiable sans préavis). Étiquette énergie : A. Différents modèles disponibles pour ce terrain. Assurances et garanties du constructeur comprises (RC professionnelle, décennale, dommage ouvrage).

Contactez l'agence de Boos

02 35 80 66 66

    * Champs obligatoires

    Vos informations sont traitées par HEXAOM et transmises à un conseiller commercial qui vous contactera afin de répondre à votre demande. Les plans et images présentés sur notre site sont la propriété d’HEXAOM et ne peuvent pas être reproduits sans son accord. Pour retrouver notre politique de protection des données personnelles et exercer vos droits conformément à la « loi informatique et liberté » cliquez-ici.