Maison neuve à
Bourg-Achard (27310) Référence : AL2297075_2

Prix du projet : Maison avec Terrain

prix 310 000 €

  • 5 pièces
  • 3 chambres
  • Surface maison 120 m2

Bourg-Achard : maison F5 (120 m²) à vendre
QUARTIER RECHERCHÉ - MAISON 5 PIÈCES NEUVE
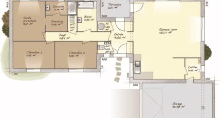
En vente à 39 km de la Manche et à quelques kilomètres de Rouen, nous sommes heureux de vous proposer, nichée dans un quartier attractif de Bourg-Achard (27310), cette maison de 5 pièces de plain-pied de 120 m² et de 580 m² de terrain. Conçue de plain-pied, elle se divise en trois chambres, une cuisine et deux salles de bains.
Cette maison est neuve.
Cette maison est située dans un secteur convoité. L'École Primaire Guy de Maupassant, l'École Maternelle le Vert Bocage et le Collège Simone Veil se trouvent à moins de 10 minutes à pied. Niveau transports, il y a la gare Bourgtheroulde-Thuit-Hébert à moins de 10 minutes en voiture. Il y a un accès à l'autoroute A13 à 2 km. On trouve un tennis, des commerces, deux boulangeries, trois supermarchés, un bureau de poste et une épicerie à quelques minutes. Ne manquez pas le marché Place de la Mairie tous les lundis matin.
Son prix de vente est de 310 000 €.
N'hésitez pas à prendre contact avec notre agence (Kamel BAZIZ : 07-80-36-63-82) pour obtenir de plus amples renseignements sur la maison, sur les démarches à suivre ou sur les modalités de vente. Maisons Balency Boos est là pour vous accompagner à toutes les étapes de l'achat.

Annonce proposée par un Agent Commercial Partenaire.

Mentions légales

Terrain proposé par un partenaire foncier selon disponibilités et autorisation de publicité au prix de 71 000 €. Hors droit d'enregistrement et frais de notaire. Terrain + Maison proposés au prix de 239 000 € (Hors branchements et raccordements, papiers peints, peintures, revêtement de sol dans les chambres. Tarif modifiable sans préavis). Etiquette énergie : A. Différents modèles disponibles pour ce terrain. Assurances et garanties du constructeur (RC professionnelle, décennale, dommage ouvrage, garantie de remboursement de l'acompte, livraison à prix et délai convenu) : https://www.maisons-balency.fr/informations-legales/. HEXAOM Services est enregistré auprès de l'ORIAS en tant que Courtier en financement, Niveau 1, sous le numéro 14001345.

Contactez l'agence de Boos

02 35 80 66 66

    * Champs obligatoires

    Vos informations sont traitées par HEXAOM et transmises à un conseiller commercial qui vous contactera afin de répondre à votre demande. Les plans et images présentés sur notre site sont la propriété d’HEXAOM et ne peuvent pas être reproduits sans son accord. Pour retrouver notre politique de protection des données personnelles et exercer vos droits conformément à la « loi informatique et liberté » cliquez-ici.