Maison neuve à
Bourg-Achard (27310) Référence : AL2297075_3

Prix du projet : Maison avec Terrain

prix 335 000 €

  • 6 pièces
  • 4 chambres
  • Surface maison 139 m2

VENTE : maison F6 (139 m²) à Bourg-Achard
QUARTIER RECHERCHÉ - MAISON 6 PIÈCES NEUVE
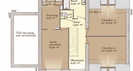
À 39 km de la Manche et à quelques kilomètres de Rouen, nous vous présentons à vendre, dans un secteur recherché de Bourg-Achard (27310), cette maison de 6 pièces de 139 m². Son intérieur se divise en quatre chambres, une cuisine et deux salles de bains.
Le terrain de la propriété est de 580 m².
Il s'agit d'une maison de 2 niveaux. Elle est neuve.
Cette maison se situe dans un quartier convoité. Il y a l'École Primaire Guy de Maupassant, l'École Maternelle le Vert Bocage et le Collège Simone Veil à moins de 10 minutes à pied. Côté transports en commun, on trouve la gare Bourgtheroulde-Thuit-Hébert à moins de 10 minutes en voiture. L'autoroute A13 est accessible à 2 km. Il y a un tennis, des commerces, deux boulangeries, trois supermarchés, un bureau de poste et une épicerie à proximité. Ne manquez pas le marché Place de la Mairie tous les lundis matin.
Elle est proposée à l'achat pour 335 000 €.
Prenez contact avec notre agence (BAZIZ Kamel : 07-80-36-63-82) pour plus d'informations sur la maison ou sur les démarches à suivre.

Annonce proposée par un Agent Commercial Partenaire.

Mentions légales

Terrain proposé par un partenaire foncier selon disponibilités et autorisation de publicité au prix de 71 000 €. Hors droit d'enregistrement et frais de notaire. Terrain + Maison proposés au prix de 264 000 € (Hors branchements et raccordements, papiers peints, peintures, revêtement de sol dans les chambres. Tarif modifiable sans préavis). Etiquette énergie : A. Différents modèles disponibles pour ce terrain. Assurances et garanties du constructeur (RC professionnelle, décennale, dommage ouvrage, garantie de remboursement de l'acompte, livraison à prix et délai convenu) : https://www.maisons-balency.fr/informations-legales/. HEXAOM Services est enregistré auprès de l'ORIAS en tant que Courtier en financement, Niveau 1, sous le numéro 14001345.

Contactez l'agence de Boos

02 35 80 66 66

    * Champs obligatoires

    Vos informations sont traitées par HEXAOM et transmises à un conseiller commercial qui vous contactera afin de répondre à votre demande. Les plans et images présentés sur notre site sont la propriété d’HEXAOM et ne peuvent pas être reproduits sans son accord. Pour retrouver notre politique de protection des données personnelles et exercer vos droits conformément à la « loi informatique et liberté » cliquez-ici.