Maison neuve à
Bourg-Achard (27310) Référence : MJ2311457_2

Prix du projet : Maison avec Terrain

prix 207 500 €

  • 4 pièces
  • 3 chambres
  • Surface maison 94 m2

VENTE : maison T4 (94 m²) à Routot
QUARTIER RECHERCHÉ - MAISON 4 PIÈCES NEUVE
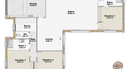
En vente à 29 km de la Manche et à deux pas de Rouen, notre agence Maisons Balency Boos est ravie de vous proposer cette maison de 4 pièces de plain-pied de 94 m², nichée dans un quartier recherché de Routot (27350).
Conçue de plain-pied, elle inclut trois chambres, une cuisine et deux salles de bains. La maison est neuve.
Le terrain de la propriété s'étend sur 530 m².
Cette maison se trouve dans un secteur convoité. Il y a le Collège le Roumois à moins de 10 minutes à pied. Les autoroutes A13 et A131 sont accessibles à moins de 10 km. On trouve deux tennis, une boulangerie, un commerce, un supermarché et une épicerie dans les environs. Le marché Place Leclerc a lieu chaque mercredi matin.
Son prix de vente est de 207 500 €.
Prenez contact avec notre agence (JOURDON Michael : 02-35-80-66-66) pour plus de renseignements sur la maison. Maisons Balency Boos vous accompagne dans toutes vos démarches et dans tous vos projets immobiliers.

Annonce proposée par un Agent Commercial Partenaire.

Mentions légales

Terrain proposé par un partenaire foncier selon disponibilités et autorisation de publicité au prix de 54 000 €. Hors droit d'enregistrement et frais de notaire. Terrain + Maison proposés au prix de 153 500 € (Hors branchements et raccordements, papiers peints, peintures, revêtement de sol dans les chambres. Tarif modifiable sans préavis). Etiquette énergie : A. Différents modèles disponibles pour ce terrain. Assurances et garanties du constructeur (RC professionnelle, décennale, dommage ouvrage, garantie de remboursement de l'acompte, livraison à prix et délai convenu) : https://www.maisons-balency.fr/informations-legales/. HEXAOM Services est enregistré auprès de l'ORIAS en tant que Courtier en financement, Niveau 1, sous le numéro 14001345.

Contactez l'agence de Boos

02 35 80 66 66

    * Champs obligatoires

    Vos informations sont traitées par HEXAOM et transmises à un conseiller commercial qui vous contactera afin de répondre à votre demande. Les plans et images présentés sur notre site sont la propriété d’HEXAOM et ne peuvent pas être reproduits sans son accord. Pour retrouver notre politique de protection des données personnelles et exercer vos droits conformément à la « loi informatique et liberté » cliquez-ici.