Maison neuve à
Bourgtheroulde-Infreville (27520) Référence : KXA2335780_3

Prix du projet : Maison avec Terrain

prix 495 000 €

  • 7 pièces
  • 5 chambres
  • Surface maison 170 m2

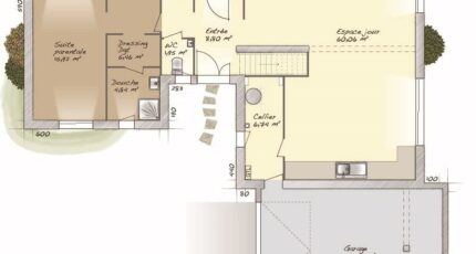
VENTE : maison de 7 pièces (170 m²) à Bourgtheroulde-Infreville
MAISON 7 PIÈCES NEUVE - PROCHE DE ROUEN
À 47 km de la Manche et à quelques kilomètres de Rouen, laissez vous charmer par cette maison de 7 pièces de plain-pied de 170 m² à Bourgtheroulde-Infreville (27520). Son intérieur offre cinq chambres, une cuisine et trois salles de bains.
Le terrain de la propriété s'étend sur 1 800 m².
La maison est neuve.
Il y a l'École Élémentaire Hector Malot, l'École Maternelle Léonard de Vinci et le Collège Jean de la Fontaine à moins de 10 minutes à pied. Côté transports, on trouve deux gares (Bourgtheroulde-Thuit-Hébert et Elbeuf-Saint-Aubin) à moins de 10 minutes en voiture. Les autoroutes A13 et A28 sont accessibles à moins de 10 km. Il y a une bibliothèque, des commerces, quatre boulangeries, un supermarché, une épicerie et trois boucheries-charcuteries dans les environs.
Elle est à vendre pour la somme de 495 000 €.
Prenez contact avec Kévin XAVIER ALVES (06-58-91-13-87) pour tout renseignement sur cette maison ou sur les démarches à suivre. Maisons Balency Boos vous accompagne dans tous vos projets immobiliers et à toutes les étapes de l'achat.

Annonce proposée par un Agent Commercial Partenaire.

Mentions légales

Terrain proposé par un partenaire foncier selon disponibilités et autorisation de publicité au prix de 170 000 €. Hors droit d'enregistrement et frais de notaire. Terrain + Maison proposés au prix de 325 000 € (Hors branchements et raccordements, papiers peints, peintures, revêtement de sol dans les chambres. Tarif modifiable sans préavis). Etiquette énergie : A. Différents modèles disponibles pour ce terrain. Assurances et garanties du constructeur (RC professionnelle, décennale, dommage ouvrage, garantie de remboursement de l'acompte, livraison à prix et délai convenu) : https://www.maisons-balency.fr/informations-legales/. HEXAOM Services est enregistré auprès de l'ORIAS en tant que Courtier en financement, Niveau 1, sous le numéro 14001345.

Contactez l'agence de Boos

02 35 80 66 66

    * Champs obligatoires

    Vos informations sont traitées par HEXAOM et transmises à un conseiller commercial qui vous contactera afin de répondre à votre demande. Les plans et images présentés sur notre site sont la propriété d’HEXAOM et ne peuvent pas être reproduits sans son accord. Pour retrouver notre politique de protection des données personnelles et exercer vos droits conformément à la « loi informatique et liberté » cliquez-ici.