Maison neuve à
Bourgtheroulde-Infreville (27520) Référence : KXA2335780_4

Prix du projet : Maison avec Terrain

prix 400 000 €

  • 5 pièces
  • 3 chambres
  • Surface maison 120 m2

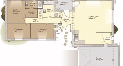
Maison de 5 pièces (120 m²) en vente à Bourgtheroulde-Infreville
PROCHE DE ROUEN - MAISON 5 PIÈCES NEUVE
En vente : située à 47 km de la Manche et à quelques kilomètres de Rouen, Maisons Balency Boos vous présente cette maison de 5 pièces de plain-pied de 120 m² à Bourgtheroulde-Infreville (27520).
Elle se divise en trois chambres, une cuisine et deux salles de bains. La maison est neuve.
Le terrain de la propriété est de 1 800 m².
L'École Élémentaire Hector Malot, l'École Maternelle Léonard de Vinci et le Collège Jean de la Fontaine sont implantés à moins de 10 minutes à pied. Niveau transports, on trouve les gares Bourgtheroulde-Thuit-Hébert et Elbeuf-Saint-Aubin à moins de 10 minutes en voiture. Les autoroutes A13 et A28 sont accessibles à moins de 10 km. Il y a une bibliothèque, des commerces, quatre boulangeries, un supermarché, trois boucheries-charcuteries et un bureau de poste dans les environs.
Elle est à vendre pour la somme de 400 000 €.
Contactez Kévin XAVIER ALVES (06-58-91-13-87) pour toute question sur cette maison.

Annonce proposée par un Agent Commercial Partenaire.

Mentions légales

Terrain proposé par un partenaire foncier selon disponibilités et autorisation de publicité au prix de 170 000 €. Hors droit d'enregistrement et frais de notaire. Terrain + Maison proposés au prix de 230 000 € (Hors branchements et raccordements, papiers peints, peintures, revêtement de sol dans les chambres. Tarif modifiable sans préavis). Etiquette énergie : A. Différents modèles disponibles pour ce terrain. Assurances et garanties du constructeur (RC professionnelle, décennale, dommage ouvrage, garantie de remboursement de l'acompte, livraison à prix et délai convenu) : https://www.maisons-balency.fr/informations-legales/. HEXAOM Services est enregistré auprès de l'ORIAS en tant que Courtier en financement, Niveau 1, sous le numéro 14001345.

Contactez l'agence de Boos

02 35 80 66 66

    * Champs obligatoires

    Vos informations sont traitées par HEXAOM et transmises à un conseiller commercial qui vous contactera afin de répondre à votre demande. Les plans et images présentés sur notre site sont la propriété d’HEXAOM et ne peuvent pas être reproduits sans son accord. Pour retrouver notre politique de protection des données personnelles et exercer vos droits conformément à la « loi informatique et liberté » cliquez-ici.