Maison neuve à
Bourgtheroulde-Infreville (27520) Référence : KXA2386176_1

Prix du projet : Maison avec Terrain

prix 385 000 €

  • 7 pièces
  • 4 chambres
  • Surface maison 160 m2

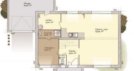
VENTE : maison F7 (160 m²) à Bourgtheroulde-Infreville
PROCHE DE ROUEN - MAISON 7 PIÈCES NEUVE
En vente : à 47 km de la Manche et à quelques kilomètres de Rouen, notre agence Maisons Balency Boos est heureuse de vous présenter cette maison de 7 pièces de 160 m² et de 730 m² de terrain à Bourgtheroulde-Infreville (27520).
Il s'agit d'une maison de 2 niveaux. Son intérieur est composé de quatre chambres, d'une cuisine et de deux salles de bains. La maison est neuve.
Il y a l'École Élémentaire Hector Malot, l'École Maternelle Léonard de Vinci et le Collège Jean de la Fontaine à moins de 10 minutes à pied. Côté transports en commun, on trouve les gares Bourgtheroulde-Thuit-Hébert et Elbeuf-Saint-Aubin à moins de 10 minutes en voiture. Les autoroutes A13 et A28 sont accessibles à moins de 10 km. Il y a une bibliothèque, des commerces, quatre boulangeries, un supermarché, trois boucheries-charcuteries et un bureau de poste dans les environs.
Elle est à vendre pour la somme de 385 000 €.
Contactez Kévin XAVIER ALVES (tél : 06-58-91-13-87) pour plus d'informations sur ce bien, sur les modalités de vente ou sur les démarches à suivre.

Annonce proposée par un Agent Commercial Partenaire.

Mentions légales

Terrain proposé par un partenaire foncier selon disponibilités et autorisation de publicité au prix de 65 000 €. Hors droit d'enregistrement et frais de notaire. Terrain + Maison proposés au prix de 320 000 € (Hors branchements et raccordements, papiers peints, peintures, revêtement de sol dans les chambres. Tarif modifiable sans préavis). Etiquette énergie : A. Différents modèles disponibles pour ce terrain. Assurances et garanties du constructeur (RC professionnelle, décennale, dommage ouvrage, garantie de remboursement de l'acompte, livraison à prix et délai convenu) : https://www.maisons-balency.fr/informations-legales/. HEXAOM Services est enregistré auprès de l'ORIAS en tant que Courtier en financement, Niveau 1, sous le numéro 14001345.

Contactez l'agence de Boos

02 35 80 66 66

    * Champs obligatoires

    Vos informations sont traitées par HEXAOM et transmises à un conseiller commercial qui vous contactera afin de répondre à votre demande. Les plans et images présentés sur notre site sont la propriété d’HEXAOM et ne peuvent pas être reproduits sans son accord. Pour retrouver notre politique de protection des données personnelles et exercer vos droits conformément à la « loi informatique et liberté » cliquez-ici.