Maison neuve à
Bourgtheroulde-Infreville (27520) Référence : KB2440468_4

Prix du projet : Maison avec Terrain

prix 191 000 €

  • 4 pièces
  • 2 chambres
  • Surface maison 70 m2

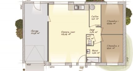
Bourgtheroulde-Infreville : maison de 4 pièces (70 m²) en vente
EMPLACEMENT PRIVILÉGIÉ - MAISON 4 PIÈCES NEUVE
En vente : située à 47 km de la Manche et à quelques kilomètres de Rouen, Maisons Balency Boos vous présente, bénéficiant d'un emplacement d'exception dans Bourgtheroulde-Infreville (27520), cette maison de 4 pièces de plain-pied de 70 m² et de 700 m² de terrain.
Conçue de plain-pied, elle est composée de deux chambres, d'une cuisine et d'une salle de bains. La maison est neuve.
Cette maison se trouve dans un quartier prisé. L'École Élémentaire Hector Malot, l'École Maternelle Léonard de Vinci et le Collège Jean de la Fontaine sont implantés à moins de 10 minutes à pied. Côté transports en commun, il y a les gares Bourgtheroulde-Thuit-Hébert et Elbeuf-Saint-Aubin à moins de 10 minutes en voiture. On trouve une bibliothèque, des commerces, quatre boulangeries, un supermarché, un bureau de poste et une épicerie à proximité.
Elle est à vendre pour la somme de 191 000 €.
Contactez notre agence (BAZIZ Kamel : 07-80-36-63-82) pour toute information sur la maison.

Annonce proposée par un Agent Commercial Partenaire.

Mentions légales

Terrain proposé par un partenaire foncier selon disponibilités et autorisation de publicité au prix de 72 500 €. Hors droit d'enregistrement et frais de notaire. Terrain + Maison proposés au prix de 191 000 € (Hors branchements et raccordements, papiers peints, peintures, revêtement de sol dans les chambres. Tarif modifiable sans préavis). Etiquette énergie : A. Différents modèles disponibles pour ce terrain. Assurances et garanties du constructeur (RC professionnelle, décennale, dommage ouvrage, garantie de remboursement de l'acompte, livraison à prix et délai convenu) : https://www.maisons-balency.fr/informations-legales/. HEXAOM Services est enregistré auprès de l'ORIAS en tant que Courtier en financement, Niveau 1, sous le numéro 14001345.

Contactez l'agence de Boos

02 35 80 66 66

    * Champs obligatoires

    Vos informations sont traitées par HEXAOM et transmises à un conseiller commercial qui vous contactera afin de répondre à votre demande. Les plans et images présentés sur notre site sont la propriété d’HEXAOM et ne peuvent pas être reproduits sans son accord. Pour retrouver notre politique de protection des données personnelles et exercer vos droits conformément à la « loi informatique et liberté » cliquez-ici.