Maison neuve à
Boussy-Saint-Antoine
(91800) Référence :
PM2290272_4
Prix du projet : Maison avec Terrain
prix 284 000 €
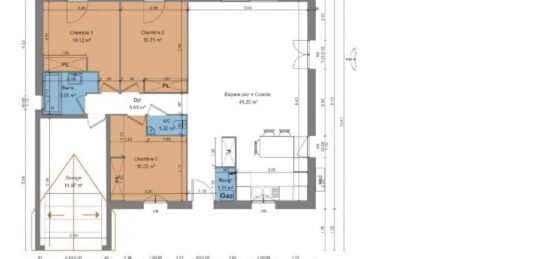
- 5 pièces
- 3 chambres
- Surface maison 82 m2
Boussy-Saint-Antoine (91800), proche RER D
PLAIN-PIED de 82 m² des Maisons Balency d'Ormoy à construire sur une belle parcelle de 657 m²
Faites-nous confiance pour vous réaliser une jolie habitation de 3 chambres, personnalisable selon vos goûts et votre budget ; devenez propriétaire de votre nouveau chez-vous dès 282 000 €, (terrain + construction, hors frais annexes).
Ce terrain à bâtir est situé dans une charmante commune localisée à 30 minutes de PARIS ; en effet, Boussy-Saint-Antoine vous offre un cadre de vie agréable avec plusieurs écoles, des collèges à proximité, ainsi que des commerces pour tous vos besoins au quotidien.
Dans notre agence d'ORMOY spécifiquement, nous concevons des projets sur-mesure répondant aux dernières normes RE2020, entièrement personnalisés, ou inspirés de nos modèles existants.
Appelez-nous dès aujourd'hui au 06 49 43 56 27 pour une recherche foncière gratuite et démarrez votre projet de construction dans des conditions optimales !
Annonce proposée par un Agent Commercial Partenaire.
Mentions légales
Terrain proposé par un partenaire foncier selon disponibilités et autorisation de publicité au prix de 139 000 €. Hors droit d'enregistrement et frais de notaire. Maison proposée, avec un contrat de construction de maison individuelle, dans le cadre de la loi du 19/12/1990, au prix de 145 000 € (Hors branchements et raccordements, papiers peints, peintures, revêtement de sol dans les chambres, qui sont chiffrés dans les travaux qui restent à charge du client. Tarif modifiable sans préavis). Étiquette énergie : A. Différents modèles disponibles pour ce terrain. Assurances et garanties du constructeur comprises (RC professionnelle, décennale, dommage ouvrage).Agence Maisons Balency de Ormoy (91540)
- Téléphone :
- 09 67 70 15 81
- Adressse :
- 23 chemin de Tournenfils - 1er étage
91540 Ormoy, France
