Maison neuve à
Bréauté (76110) Référence : SEMA9043_11

Prix du projet : Maison avec Terrain

prix 406 000 €

  • 7 pièces
  • 5 chambres
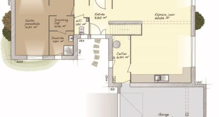
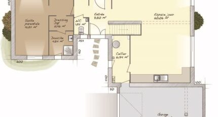
  • Surface maison 170 m2

VENTE : maison de 7 pièces (170 m²) à Bréauté
PROCHE DU HAVRE - MAISON 7 PIÈCES NEUVE
À vendre : localisée à 16 km de la Manche et à deux pas du Havre, découvrez cette maison de 7 pièces de plain-pied de 170 m² et de 650 m² de terrain à Bréauté (76110).
Son intérieur offre cinq chambres, une cuisine et trois salles de bains. Cette maison est neuve.
Il y a l'École Primaire Henri Blanc et l'École Primaire Privée Notre-Dame à moins de 10 minutes à pied. Niveau transports, on trouve quatre gares à moins de 10 minutes en voiture. Il y a un accès à l'autoroute A29 à 6 km. Il y a une boulangerie et une boucherie-charcuterie à proximité du bien.
Elle est à vendre pour la somme de 406 000 €.
Contactez notre agence (MASSON Sébastien : 06-23-38-14-17) pour tout renseignement sur la maison. Maisons Balency Boos est là pour vous accompagner à toutes les étapes de l'achat.

Annonce proposée par un Agent Commercial Partenaire.

Mentions légales

Terrain proposé par un partenaire foncier selon disponibilités et autorisation de publicité au prix de 76 000 €. Hors droit d'enregistrement et frais de notaire. Terrain + Maison proposés au prix de 406 000 € (Hors branchements et raccordements, papiers peints, peintures, revêtement de sol dans les chambres. Tarif modifiable sans préavis). Etiquette énergie : A. Différents modèles disponibles pour ce terrain. Assurances et garanties du constructeur (RC professionnelle, décennale, dommage ouvrage, garantie de remboursement de l'acompte, livraison à prix et délai convenu) : https://www.maisons-balency.fr/informations-legales/. HEXAOM Services est enregistré auprès de l'ORIAS en tant que Courtier en financement, Niveau 1, sous le numéro 14001345.

Contactez l'agence de Boos

02 35 80 66 66

    * Champs obligatoires

    Vos informations sont traitées par HEXAOM et transmises à un conseiller commercial qui vous contactera afin de répondre à votre demande. Les plans et images présentés sur notre site sont la propriété d’HEXAOM et ne peuvent pas être reproduits sans son accord. Pour retrouver notre politique de protection des données personnelles et exercer vos droits conformément à la « loi informatique et liberté » cliquez-ici.