Maison neuve à
Bréauté (76110) Référence : SEMA9043_12

Prix du projet : Maison avec Terrain

prix 183 000 €

  • 4 pièces
  • 2 chambres
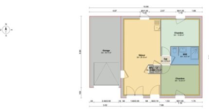
  • Surface maison 50 m2

Bréauté : maison F4 (49 m²) à vendre
MAISON 4 PIÈCES NEUVE - PROCHE DU HAVRE
À 16 km de la Manche et à quelques kilomètres du Havre, votre agence Maisons Balency Boos est heureuse de vous présenter en vente à Bréauté (76110), cette maison de 4 pièces de plain-pied de 49 m².
Conçue de plain-pied, elle inclut deux chambres, une cuisine et une salle de bains. La maison est neuve.
Le terrain de la propriété est de 650 m².
L'École Primaire Henri Blanc et l'École Primaire Privée Notre-Dame sont implantées à moins de 10 minutes à pied. Côté transports en commun, il y a quatre gares à moins de 10 minutes en voiture. L'autoroute A29 est accessible à 6 km. On trouve une boulangerie et une boucherie-charcuterie dans les environs.
Elle est à vendre pour la somme de 183 000 €.
Contactez notre constructeur (MASSON Sébastien : 06-23-38-14-17) pour plus de renseignements sur la maison, sur les modalités de vente ou sur les démarches à suivre. Maisons Balency Boos est là pour vous accompagner dans tous vos projets immobiliers.

Annonce proposée par un Agent Commercial Partenaire.

Mentions légales

Terrain proposé par un partenaire foncier selon disponibilités et autorisation de publicité au prix de 76 000 €. Hors droit d'enregistrement et frais de notaire. Terrain + Maison proposés au prix de 107 000 € (Hors branchements et raccordements, papiers peints, peintures, revêtement de sol dans les chambres. Tarif modifiable sans préavis). Etiquette énergie : A. Différents modèles disponibles pour ce terrain. Assurances et garanties du constructeur (RC professionnelle, décennale, dommage ouvrage, garantie de remboursement de l'acompte, livraison à prix et délai convenu) : https://www.maisons-balency.fr/informations-legales/. HEXAOM Services est enregistré auprès de l'ORIAS en tant que Courtier en financement, Niveau 1, sous le numéro 14001345.

Contactez l'agence de Boos

02 35 80 66 66

    * Champs obligatoires

    Vos informations sont traitées par HEXAOM et transmises à un conseiller commercial qui vous contactera afin de répondre à votre demande. Les plans et images présentés sur notre site sont la propriété d’HEXAOM et ne peuvent pas être reproduits sans son accord. Pour retrouver notre politique de protection des données personnelles et exercer vos droits conformément à la « loi informatique et liberté » cliquez-ici.