Maison neuve à
Bréauté
(76110) Référence :
SEMA9043_7
Prix du projet : Maison avec Terrain
prix 270 000 €
- 9 pièces
- 5 chambres
- Surface maison 124 m2
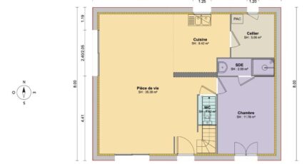
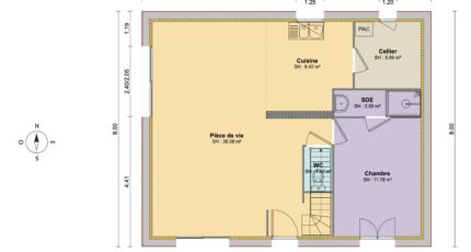
VENTE : maison de 9 pièces (124 m²) à Bréauté
MAISON 9 PIÈCES NEUVE - PROCHE DU HAVRE
À vendre à 16 km de la Manche et à deux pas du Havre, nous vous proposons cette maison de 9 pièces de 124 m² et de 650 m² de terrain à Bréauté (76110).
Cette maison possède 2 niveaux. Son intérieur inclut cinq chambres, une cuisine et trois salles de bains. Cette maison est neuve.
L'École Primaire Henri Blanc et l'École Primaire Privée Notre-Dame sont implantées à moins de 10 minutes à pied. Niveau transports en commun, on trouve quatre gares à moins de 10 minutes en voiture. L'autoroute A29 est accessible à 6 km. Il y a une boulangerie et une boucherie-charcuterie à proximité du logement.
Son prix de vente est de 270 000 €.
Contactez notre agence (Sébastien MASSON : 06-23-38-14-17) pour tout renseignement sur la maison. Maisons Balency Boos est là pour vous accompagner à toutes les étapes de votre projet.
Annonce proposée par un Agent Commercial Partenaire.
Mentions légales
Terrain proposé par un partenaire foncier selon disponibilités et autorisation de publicité au prix de 76 000 €. Hors droit d'enregistrement et frais de notaire. Terrain + Maison proposés au prix de 270 000 € (Hors branchements et raccordements, papiers peints, peintures, revêtement de sol dans les chambres. Tarif modifiable sans préavis). Etiquette énergie : A. Différents modèles disponibles pour ce terrain. Assurances et garanties du constructeur (RC professionnelle, décennale, dommage ouvrage, garantie de remboursement de l'acompte, livraison à prix et délai convenu) : https://www.maisons-balency.fr/informations-legales/. HEXAOM Services est enregistré auprès de l'ORIAS en tant que Courtier en financement, Niveau 1, sous le numéro 14001345.Agence Maisons Balency de Boos (76520)
- Téléphone :
- 02 35 80 66 66
- Adressse :
- Lotissement de la Forge Féret
76520 Boos, France