Maison neuve à
Bretteville-sur-Laize
(14680) Référence :
SU2388851_2
Prix du projet : Maison avec Terrain
prix 229 900 €
- 4 pièces
- 2 chambres
- Surface maison 70 m2
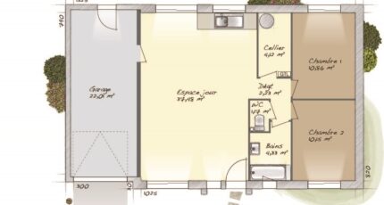
Maison de 4 pièces (70 m²) en vente à Bretteville-sur-Laize
PROCHE DE CAEN - MAISON 4 PIÈCES NEUVE
En vente : localisée à 17 kilomètres du centre-ville de Caen, nous vous présentons cette maison de 4 pièces de plain-pied de 70 m² à Bretteville-sur-Laize (14680).
Son intérieur comporte deux chambres, une cuisine et une salle de bains. Cette maison est neuve.
Le terrain de la propriété s'étend sur 390 m².
Il y a l'École Primaire les Quatres Vents et le Collège Cingal à moins de 10 minutes à pied. Il y a un accès à la nationale N158 à 4 km.
La commune est desservie par les transports scolaires.
On trouve un gymnase omnisport, une bibliothèque, deux boulangeries, trois commerces, un supermarché, une supérette et une boucherie-charcuterie à quelques minutes du logement.
Elle est proposée à l'achat pour 229 900 €.
N'hésitez pas à prendre contact avec Sophie UCENDO (tél : 06-35-39-35-17) pour toute information sur cette maison, sur les démarches à suivre ou sur les modalités de vente.
Mentions légales
Terrain proposé par un partenaire foncier selon disponibilités et autorisation de publicité au prix de 70 000 €. Hors droit d'enregistrement et frais de notaire. Terrain + Maison proposés au prix de 159 900 € (Hors branchements et raccordements, papiers peints, peintures, revêtement de sol dans les chambres. Tarif modifiable sans préavis). Etiquette énergie : A. Différents modèles disponibles pour ce terrain. Assurances et garanties du constructeur (RC professionnelle, décennale, dommage ouvrage, garantie de remboursement de l'acompte, livraison à prix et délai convenu) : https://www.maisons-balency.fr/informations-legales/. HEXAOM Services est enregistré auprès de l'ORIAS en tant que Courtier en financement, Niveau 1, sous le numéro 14001345.Agence Maisons Balency de Caen (14000)
- Téléphone :
- 02 31 50 38 15
- Adressse :
- 133, rue Saint Jean
14000 Caen, France
