Maison neuve à
Breuillet
(91650) Référence :
PM2304796_2
Prix du projet : Maison avec Terrain
prix 380 000 €
- 6 pièces
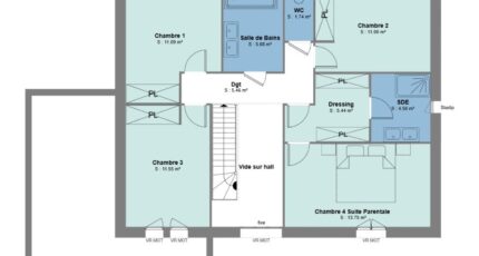
- 4 chambres
- Surface maison 136 m2
Élégante maison familiale de 4 chambres à construire à Breuillet (91650) - à partir de 380 000 €
Les Maisons Balency d'Ormoy vous proposent une belle demeure de 136 m² réalisable sur un terrain de 364 m² en LOT AVANT, au sein d'un cadre résidentiel calme et recherché. Cette élégante maison peut être entièrement personnalisée selon vos envies, ou adaptée à partir de nos modèles existants, tout en respectant les dernières normes environnementales RE2020 pour un confort durable et des performances énergétiques optimales.
Situé à proximité immédiate des écoles, commerces et services essentiels, le secteur bénéficie d'un environnement pratique et agréable. Le centre commercial Intermarché de Breuillet, le groupe scolaire Charles Péguy et le collège Roland Garros se trouvent à quelques minutes. La gare RER C de Breuillet-Village permet de rejoindre Paris en environ 45 minutes, facilitant ainsi les trajets quotidiens.
Faites le choix d'un projet sur mesure, accompagné par un constructeur de confiance.
Maisons BALENCY - Agence d'Ormoy
23 chemin de Tournenfils, 91540 Ormoy
09 67 70 15 81
Annonce proposée par un Agent Commercial Partenaire.
Mentions légales
Terrain proposé par un partenaire foncier selon disponibilités et autorisation de publicité au prix de 110 000 €. Hors droit d'enregistrement et frais de notaire. Terrain + Maison proposés au prix de 270 000 € (Hors branchements et raccordements, papiers peints, peintures, revêtement de sol dans les chambres. Tarif modifiable sans préavis). Etiquette énergie : A. Différents modèles disponibles pour ce terrain. Assurances et garanties du constructeur (RC professionnelle, décennale, dommage ouvrage, garantie de remboursement de l'acompte, livraison à prix et délai convenu) : https://www.maisons-balency.fr/informations-legales/. HEXAOM Services est enregistré auprès de l'ORIAS en tant que Courtier en financement, Niveau 1, sous le numéro 14001345.Agence Maisons Balency de Ormoy (91540)
- Téléphone :
- 09 67 70 15 81
- Adressse :
- 23 chemin de Tournenfils - 1er étage
91540 Ormoy, France
