Maison neuve à
Breuillet
(91650) Référence :
PM2321554_1
Prix du projet : Maison avec Terrain
prix 276 500 €
- 4 pièces
- 3 chambres
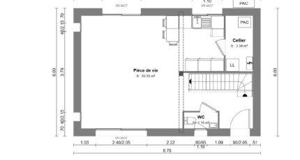
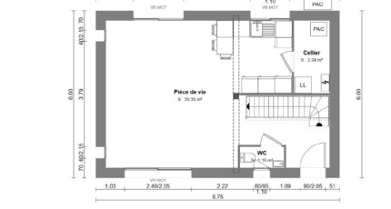
- Surface maison 105 m2
Belle Maison Contemporaine de 3 chambres à construire à Breuillet (91650) - à partir de 276 500 € !
Proche RER C
À Breuillet, charmante commune de l'Essonne, profitez d'un cadre de vie recherché pour bâtir votre maison à étage de 105 m² sur un terrain en lot avant de 338 m².
Réalisable dans un environnement calme et résidentiel, cette construction alliera confort, modernité et performance énergétique grâce au respect des dernières normes RE2020, assurant un DPE A ou B.
Avec Les Maisons Balency d'Ormoy, membre du Groupe Hexaôm, 1er constructeur de maisons individuelles en France, votre projet est entièrement personnalisable : conception sur mesure ou adaptation de l'un de nos modèles catalogues, selon vos envies et votre mode de vie.
Breuillet (91650) dispose de toutes les commodités essentielles : écoles, commerces, restaurants, supermarchés et un centre sportif accessibles en quelques minutes. La gare RER C de Breuillet - Bruyères-le-Châtel permet de rejoindre Paris en moins d'une heure, tandis que les grandes villes voisines comme Arpajon ou Massy se situent à une vingtaine de minutes.
Notre agence des Maisons Balency d'Ormoy vous accompagne à chaque étape, de la recherche foncière jusqu'à la remise des clés, pour faire de votre projet une réalité.
📞 Contactez-nous au 09 67 70 15 81 pour plus d'informations ou pour étudier ensemble votre projet de construction en Île de France !
Annonce proposée par un Agent Commercial Partenaire.
Mentions légales
Terrain proposé par un partenaire foncier selon disponibilités et autorisation de publicité au prix de 115 000 €. Hors droit d'enregistrement et frais de notaire. Maison proposée, avec un contrat de construction de maison individuelle, dans le cadre de la loi du 19/12/1990, au prix de 161 500 € (Hors branchements et raccordements, papiers peints, peintures, revêtement de sol dans les chambres, qui sont chiffrés dans les travaux qui restent à charge du client. Tarif modifiable sans préavis). Étiquette énergie : A. Différents modèles disponibles pour ce terrain. Assurances et garanties du constructeur comprises (RC professionnelle, décennale, dommage ouvrage).Agence Maisons Balency de Ormoy (91540)
- Téléphone :
- 09 67 70 15 81
- Adressse :
- 23 chemin de Tournenfils - 1er étage
91540 Ormoy, France
