Maison neuve à
Brie-Comte-Robert
(77170) Référence :
RK2377939_1
Prix du projet : Maison avec Terrain
prix 368 900 €
- 6 pièces
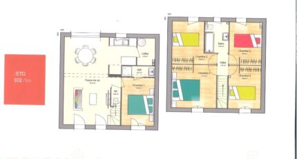
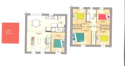
- 5 chambres
- Surface maison 102 m2
Grisy-Suisnes : maison de 6 pièces (102 m²) en vente
IDÉALEMENT SITUÉE - MAISON 6 PIÈCES NEUVE
À vendre : à deux pas du RER E (station Gretz-Armainvilliers, 35 min de Paris), venez découvrir cette maison de 6 pièces de 102 m² avec vue dégagée idéalement située dans Grisy-Suisnes (77166).
Cette maison compte 2 niveaux. Son intérieur comporte cinq chambres, une cuisine et deux salles de bains. La maison est neuve.
Le terrain de la propriété s'étend sur 395 m².
Le bien se trouve dans un quartier convoité. Il y a l'École Élémentaire Champ Fleuri et l'École Maternelle la Ruche à moins de 10 minutes à pied. Côté transports, on trouve les lignes E et D du RER ainsi que cinq gares à moins de 10 minutes en voiture. On trouve un tennis, une bibliothèque, deux commerces, une boulangerie, deux épiceries et un bureau de poste dans les environs.
Il est à vendre pour la somme de 368900 €.
Contactez Ramzi KRIFA (06-29-51-92-49) pour obtenir de plus amples informations sur la maison. Maisons Balency La Ville-du-Bois vous accompagne dans tous vos projets immobiliers et dans toutes vos démarches.
Mentions légales
Terrain proposé par un partenaire foncier selon disponibilités et autorisation de publicité au prix de 149 000 €. Hors droit d'enregistrement et frais de notaire. Terrain + Maison proposés au prix de 368 900 € (Hors branchements et raccordements, papiers peints, peintures, revêtement de sol dans les chambres. Tarif modifiable sans préavis). Etiquette énergie : A. Différents modèles disponibles pour ce terrain. Assurances et garanties du constructeur (RC professionnelle, décennale, dommage ouvrage, garantie de remboursement de l'acompte, livraison à prix et délai convenu) : https://www.maisons-balency.fr/informations-legales/. HEXAOM Services est enregistré auprès de l'ORIAS en tant que Courtier en financement, Niveau 1, sous le numéro 14001345.Agence Maisons Balency de La Ville-du-Bois (91620)
- Téléphone :
- 01 64 49 21 13
- Adressse :
- Domexpo Sud - RN20
91620 La Ville-du-Bois, France
