Maison neuve à
Brie-Comte-Robert
(77170) Référence :
BS2388053_1
Prix du projet : Maison avec Terrain
prix 320 000 €
- 5 pièces
- 3 chambres
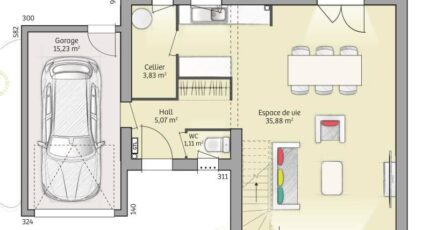
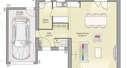
- Surface maison 90 m2
Benoit SAISON de MAISONS BALENCY au 06/30/47/58/05 vous propose de réaliser votre projet de construction 100% SUR-MESURE sur ce beau terrain proche de Brie Comte Robert. Ne manquez pas cette occasion unique de construire la maison de vos rêves. Elle sera réalisée en fonction de vos souhaits et de votre budget. Descriptif et matériaux de qualité, maison RE 2020, contrat CCMI. Plans réalisés pas nos soins, modèle sur mesure, maison écologique avec une architecture contemporaine ou moderne. Terrain proposé par notre partenaires fonciers, sous réserve de disponibilité. (Offre Terrain+Maison hors frais de notaires). Contactez moi dès maintenant au 06/30/47/58/05 pour discuter de votre projet et commencez à transformer vos idées en réalité. Votre maison personnalisée vous attend !!
Annonce proposée par un Agent Commercial Partenaire.
Mentions légales
Terrain proposé par un partenaire foncier selon disponibilités et autorisation de publicité au prix de 151 000 €. Hors droit d'enregistrement et frais de notaire. Terrain + Maison proposés au prix de 169 000 € (Hors branchements et raccordements, papiers peints, peintures, revêtement de sol dans les chambres. Tarif modifiable sans préavis). Etiquette énergie : A. Différents modèles disponibles pour ce terrain. Assurances et garanties du constructeur (RC professionnelle, décennale, dommage ouvrage, garantie de remboursement de l'acompte, livraison à prix et délai convenu) : https://www.maisons-balency.fr/informations-legales/. HEXAOM Services est enregistré auprès de l'ORIAS en tant que Courtier en financement, Niveau 1, sous le numéro 14001345.Agence Maisons Balency de Moret-sur-Loing (77250)
- Téléphone :
- 09 78 81 26 91
- Adressse :
- 96 avenue de Fontainebleau
77250 Moret-sur-Loing, France
