Maison neuve à
Brignac (34800) Référence : HM2313459_7

Prix du projet : Maison avec Terrain

prix 382 000 €

  • 5 pièces
  • 3 chambres
  • Surface maison 105 m2

Maison de 5 pièces (105 m²) à vendre à Brignac
IDÉALEMENT SITUÉE - MAISON 5 PIÈCES NEUVE
À vendre : localisée à 35 km de la mer Méditerranée et à 30 km de Sète, laissez vous charmer par, idéalement située dans Brignac (34800), cette maison de 5 pièces de 105 m².
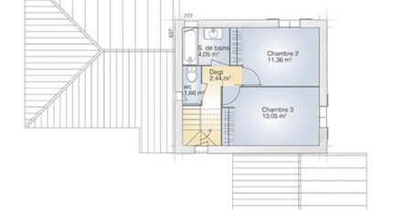
Il s'agit d'une maison de 2 niveaux. Son intérieur se divise en trois chambres, une cuisine et une salle de bains. Cette maison est neuve.
Le terrain du bien est de 485 m².
La maison se situe dans un secteur recherché. L'École Primaire Albert Camus est implantée à moins de 10 minutes à pied. Les autoroutes A75 et A750 sont accessibles à moins de 4 km.
Son prix de vente est de 382 000 €.
Contactez notre agence (Hervé MALDONADO : 06-72-60-44-42) pour obtenir de plus amples renseignements sur la maison. Maisons Balency Pézenas vous accompagne à toutes les étapes de votre projet et dans toutes vos démarches.

Mentions légales

Terrain proposé par un partenaire foncier selon disponibilités et autorisation de publicité au prix de 132 000 €. Hors droit d'enregistrement et frais de notaire. Terrain + Maison proposés au prix de 250 000 € (Hors branchements et raccordements, papiers peints, peintures, revêtement de sol dans les chambres. Tarif modifiable sans préavis). Etiquette énergie : A. Différents modèles disponibles pour ce terrain. Assurances et garanties du constructeur (RC professionnelle, décennale, dommage ouvrage, garantie de remboursement de l'acompte, livraison à prix et délai convenu) : https://www.maisons-balency.fr/informations-legales/. HEXAOM Services est enregistré auprès de l'ORIAS en tant que Courtier en financement, Niveau 1, sous le numéro 14001345.

Contactez l'agence de Pézenas

04 99 43 05 21

    * Champs obligatoires

    Vos informations sont traitées par HEXAOM et transmises à un conseiller commercial qui vous contactera afin de répondre à votre demande. Les plans et images présentés sur notre site sont la propriété d’HEXAOM et ne peuvent pas être reproduits sans son accord. Pour retrouver notre politique de protection des données personnelles et exercer vos droits conformément à la « loi informatique et liberté » cliquez-ici.