Maison neuve à
Briis-sous-Forges
(91640) Référence :
AA2393303_2
Prix du projet : Maison avec Terrain
prix 317 605 €
- 5 pièces
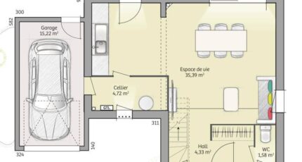
- 3 chambres
- Surface maison 90 m2
Briis-sous-Forges : maison de 5 pièces (90 m²) en vente
EMPLACEMENT PRIVILÉGIÉ - MAISON 5 PIÈCES NEUVE
À deux pas de la station Breuillet-Bruyères-le-Châtel du RER C (40 min de Paris), nous vous présentons en vente, bénéficiant d'un emplacement privilégié dans Briis-sous-Forges (91640), cette maison de 5 pièces de 90 m².
Cette maison comporte 2 niveaux. Elle dispose de trois chambres, d'une cuisine et d'une salle de bains. Cette maison est neuve.
Le terrain de la propriété s'étend sur 486 m².
Cette propriété se trouve dans un quartier convoité. Il y a le Collège Jean Monnet, l'École Élémentaire les Bosquets et l'École Maternelle les Lutins à moins de 10 minutes à pied. Niveau transports en commun, on trouve deux lignes de RER (C et B) ainsi que cinq gares à moins de 10 minutes en voiture. On trouve une bibliothèque, un tennis, deux boulangeries, quatre commerces, un bureau de poste, deux épiceries et une boucherie-charcuterie à proximité.
Elle est proposée à l'achat pour 317 605 €.
Contactez nous au 06-51-51-80-60 pour toute question sur la maison ou sur les modalités de vente. Maisons Balency Ormoy est là pour vous accompagner dans tous vos projets immobiliers.
Annonce proposée par un Agent Commercial Partenaire.
Mentions légales
Terrain proposé par un partenaire foncier selon disponibilités et autorisation de publicité au prix de 125 000 €. Hors droit d'enregistrement et frais de notaire. Terrain + Maison proposés au prix de 317 605 € (Hors branchements et raccordements, papiers peints, peintures, revêtement de sol dans les chambres. Tarif modifiable sans préavis). Etiquette énergie : A. Différents modèles disponibles pour ce terrain. Assurances et garanties du constructeur (RC professionnelle, décennale, dommage ouvrage, garantie de remboursement de l'acompte, livraison à prix et délai convenu) : https://www.maisons-balency.fr/informations-legales/. HEXAOM Services est enregistré auprès de l'ORIAS en tant que Courtier en financement, Niveau 1, sous le numéro 14001345.Agence Maisons Balency de Ormoy (91540)
- Téléphone :
- 09 67 70 15 81
- Adressse :
- 23 chemin de Tournenfils - 1er étage
91540 Ormoy, France
