Maison neuve à
Brionne (27800) Référence : KB2398905_4

Prix du projet : Maison avec Terrain

prix 214 000 €

  • 6 pièces
  • 4 chambres
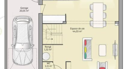
  • Surface maison 91 m2

Brionne : maison de 6 pièces (91 m²) en vente
EMPLACEMENT PRIVILÉGIÉ - MAISON 6 PIÈCES NEUVE
En vente : localisée à 42 km de la Manche, nous sommes heureux de vous proposer, bénéficiant d'un emplacement privilégié dans Brionne (27800), cette maison de 6 pièces de 91 m².
Il s'agit d'une maison de 2 niveaux. Elle inclut quatre chambres, une cuisine et une salle de bains. Cette maison est neuve.
Le terrain de la propriété est de 1 135 m².
La maison se situe dans un secteur convoité. L'École Maternelle Georges Brassens, l'École Primaire Privée de la Providence, l'École Élémentaire Louis Pergaud, le Collège Pierre Brossolette et le Lycée Professionnel Augustin Boismard-Lycée des Métiers d'Art, Bois, Tissu, Cuir se trouvent à moins de 10 minutes à pied. Niveau transports en commun, il y a la gare Brionne juste à côté. L'autoroute A28 est accessible à 7 km. On trouve un tennis, une bibliothèque, des commerces, des boulangeries, deux supermarchés, deux épiceries et deux boucheries-charcuteries à proximité du logement. Le marché Place Fremont anime le quartier.
Elle est proposée à l'achat pour 214 000 €.
N'hésitez pas à prendre contact avec Kamel BAZIZ (07-80-36-63-82) pour toute question sur le bien. Maisons Balency Boos vous accompagne à toutes les étapes de votre projet et dans toutes vos démarches.

Annonce proposée par un Agent Commercial Partenaire.

Mentions légales

Terrain proposé par un partenaire foncier selon disponibilités et autorisation de publicité au prix de 53 500 €. Hors droit d'enregistrement et frais de notaire. Terrain + Maison proposés au prix de 214 000 € (Hors branchements et raccordements, papiers peints, peintures, revêtement de sol dans les chambres. Tarif modifiable sans préavis). Etiquette énergie : A. Différents modèles disponibles pour ce terrain. Assurances et garanties du constructeur (RC professionnelle, décennale, dommage ouvrage, garantie de remboursement de l'acompte, livraison à prix et délai convenu) : https://www.maisons-balency.fr/informations-legales/. HEXAOM Services est enregistré auprès de l'ORIAS en tant que Courtier en financement, Niveau 1, sous le numéro 14001345.

Contactez l'agence de Boos

02 35 80 66 66

    * Champs obligatoires

    Vos informations sont traitées par HEXAOM et transmises à un conseiller commercial qui vous contactera afin de répondre à votre demande. Les plans et images présentés sur notre site sont la propriété d’HEXAOM et ne peuvent pas être reproduits sans son accord. Pour retrouver notre politique de protection des données personnelles et exercer vos droits conformément à la « loi informatique et liberté » cliquez-ici.