Maison neuve à
Bû
(28410) Référence :
TD2258292_6
Prix du projet : Maison avec Terrain
prix 355 000 €
- 6 pièces
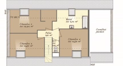
- 4 chambres
- Surface maison 117 m2
Maison T6 (117 m²) à vendre à Bû
IDÉALEMENT SITUÉE - MAISON 6 PIÈCES NEUVE
En vente : à proximité du Transilien N (gare de Marchezais-Broué, 1 h de Paris), votre agence Maisons Balency Coignières est heureuse de vous proposer, idéalement située dans Bû (28410), cette maison de 6 pièces de plain-pied de 117 m².
Conçue de plain-pied, elle est composée de quatre chambres, d'une cuisine et de deux salles de bains. Cette maison est neuve.
Le terrain de la propriété est de 464 m².
Cette maison est située dans un secteur recherché. On trouve l'École Primaire Thérézia et Roger Breton et le Collège Charles de Gaulle à moins de 10 minutes à pied. Côté transports en commun, il y a les gares Marchezais-Broué et Houdan à moins de 10 minutes en voiture. Les nationales N12 et N154 sont accessibles à moins de 10 km et Mantes-la-Jolie se trouve à 26 km. Il y a un tennis, une bibliothèque, deux commerces, une boulangerie, une épicerie et une boucherie-charcuterie à quelques minutes du bien.
Son prix de vente est de 355 000 €.
Contactez notre constructeur (Thibault DUTEURTRE : 06-23-41-73-81) pour tout renseignement sur la propriété.
Annonce proposée par un Agent Commercial Partenaire.
Mentions légales
Terrain proposé par un partenaire foncier selon disponibilités et autorisation de publicité au prix de 95 900 €. Hors droit d'enregistrement et frais de notaire. Maison proposée, avec un contrat de construction de maison individuelle, dans le cadre de la loi du 19/12/1990, au prix de 259 100 € (Hors branchements et raccordements, papiers peints, peintures, revêtement de sol dans les chambres, qui sont chiffrés dans les travaux qui restent à charge du client. Tarif modifiable sans préavis). Étiquette énergie : A. Différents modèles disponibles pour ce terrain. Assurances et garanties du constructeur comprises (RC professionnelle, décennale, dommage ouvrage).Agence Maisons Balency de Coignières (78310)
- Téléphone :
- 01 34 61 42 59
- Adressse :
- Domexpo Ouest
78310 Coignières, France
