Maison neuve à
Buchy (76750) Référence : MJ2334796_2

Prix du projet : Maison avec Terrain

prix 273 900 €

  • 5 pièces
  • 3 chambres
  • Surface maison 100 m2

Maison de 5 pièces (100 m²) en vente à La Rue-Saint-Pierre
QUARTIER RECHERCHÉ - MAISON 5 PIÈCES NEUVE
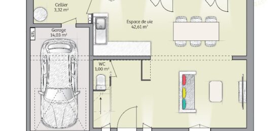
À vendre à 45 km de la Manche et à 18 km de Rouen, située dans un secteur attractif de La Rue-Saint-Pierre (76690), laissez vous charmer par cette maison de 5 pièces de plain-pied de 100 m². Son intérieur compte trois chambres, une cuisine et deux salles de bains.
Le terrain du bien s'étend sur 499 m².
Cette maison est neuve.
La maison se trouve dans un quartier convoité. On y trouve une école élémentaire. Niveau transports, il y a les gares Longuerue-Vieux-Manoir, Morgny-la-Pommeraye et Montérolier-Buchy à moins de 10 minutes en voiture. Les autoroutes A28 et A29 sont accessibles à moins de 10 km. On trouve un tennis et deux commerces dans les environs.
Elle est à vendre pour la somme de 273 900 €.
N'hésitez pas à prendre contact avec notre agence (JOURDON Michael : 06.43.05.84.44) pour plus d'informations sur la maison, sur les modalités de vente et sur les démarches à suivre.

Annonce proposée par un Agent Commercial Partenaire.

Mentions légales

Terrain proposé par un partenaire foncier selon disponibilités et autorisation de publicité au prix de 76 000 €. Hors droit d'enregistrement et frais de notaire. Terrain + Maison proposés au prix de 197 900 € (Hors branchements et raccordements, papiers peints, peintures, revêtement de sol dans les chambres. Tarif modifiable sans préavis). Etiquette énergie : A. Différents modèles disponibles pour ce terrain. Assurances et garanties du constructeur (RC professionnelle, décennale, dommage ouvrage, garantie de remboursement de l'acompte, livraison à prix et délai convenu) : https://www.maisons-balency.fr/informations-legales/. HEXAOM Services est enregistré auprès de l'ORIAS en tant que Courtier en financement, Niveau 1, sous le numéro 14001345.

Contactez l'agence de Boos

02 35 80 66 66

    * Champs obligatoires

    Vos informations sont traitées par HEXAOM et transmises à un conseiller commercial qui vous contactera afin de répondre à votre demande. Les plans et images présentés sur notre site sont la propriété d’HEXAOM et ne peuvent pas être reproduits sans son accord. Pour retrouver notre politique de protection des données personnelles et exercer vos droits conformément à la « loi informatique et liberté » cliquez-ici.