Maison neuve à
Bullion
(78830) Référence :
TD2255809_4
Prix du projet : Maison avec Terrain
prix 362 125 €
- 4 pièces
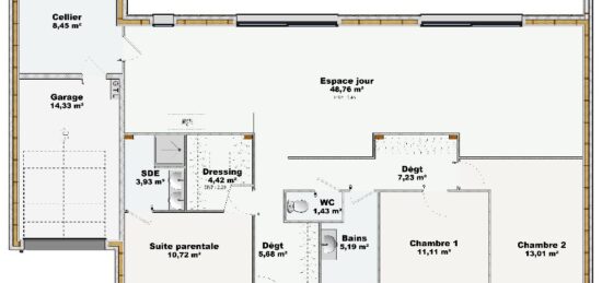
- 3 chambres
- Surface maison 78 m2
Bullion : maison de 4 pièces (78 m²) à vendre
IDÉALEMENT SITUÉE - MAISON 4 PIÈCES NEUVE
Proche de la station Dourdan la Forêt (Paris à 1 h avec le RER C), nous sommes heureux de vous présenter cette maison de 4 pièces de 78 m² et de 778 m² de terrain en vente idéalement située dans Bullion (78830).
Cette maison compte 2 niveaux. Elle inclut trois chambres, une cuisine et une salle de bains. La maison est neuve.
Cette maison se trouve dans un quartier prisé. On y trouve des établissements scolaires maternelles et élémentaires. Côté transports, il y a la ligne de RER C (Dourdan-La-Forêt) ainsi que les gares Dourdan La Forêt et Dourdan à moins de 10 minutes en voiture. On trouve un tennis, une boulangerie et une épicerie à proximité.
Son prix de vente est de 362 125 €.
N'hésitez pas à prendre contact avec notre agence (Thibault DUTEURTRE : 06-23-41-73-81) pour plus de renseignements sur le bien. Maisons Balency Coignières vous accompagne à toutes les étapes de l'achat et dans toutes vos démarches.
Annonce proposée par un Agent Commercial Partenaire.
Mentions légales
Terrain proposé par un partenaire foncier selon disponibilités et autorisation de publicité au prix de 170 000 €. Hors droit d'enregistrement et frais de notaire. Maison proposée, avec un contrat de construction de maison individuelle, dans le cadre de la loi du 19/12/1990, au prix de 192 125 € (Hors branchements et raccordements, papiers peints, peintures, revêtement de sol dans les chambres, qui sont chiffrés dans les travaux qui restent à charge du client. Tarif modifiable sans préavis). Étiquette énergie : A. Différents modèles disponibles pour ce terrain. Assurances et garanties du constructeur comprises (RC professionnelle, décennale, dommage ouvrage).Agence Maisons Balency de Coignières (78310)
- Téléphone :
- 01 34 61 42 59
- Adressse :
- Domexpo Ouest
78310 Coignières, France
