Maison neuve à
Butry-sur-Oise
(95430) Référence :
MU2275673_6
Prix du projet : Maison avec Terrain
prix 320 000 €
- 5 pièces
- 3 chambres
- Surface maison 90 m2
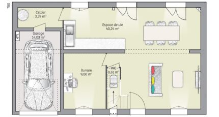
VENTE : maison F5 (90 m²) à Butry-sur-Oise
IDÉALEMENT SITUÉE - MAISON 5 PIÈCES NEUVE
Au pied de la gare de Valmondois (Paris à 45 min par le Transilien H), en vente idéalement située dans Butry-sur-Oise (95430), venez découvrir cette maison de 5 pièces de 90 m². Elle est composée de trois chambres, d'une cuisine et d'une salle de bains.
Le terrain de cette maison s'étend sur 608 m².
C'est une maison de 2 niveaux. Elle est neuve.
La maison est située dans un quartier recherché. L'École Primaire Publique Raoul Sales et l'École Secondaire Privée Pierre Gilles de Gennes sont implantés à moins de 10 minutes à pied. Niveau transports, on trouve la gare Valmondois dans les environs. Il y a une bibliothèque, deux tennis, une boulangerie et deux commerces à quelques minutes.
Son prix de vente est de 320 000 €.
Contactez notre agence (URBANSKY Mylann : 06-23-32-28-23) pour obtenir de plus amples renseignements sur la maison. Maisons Balency Baillet-en-France vous accompagne à toutes les étapes de votre projet et dans tous vos projets immobiliers.
Annonce proposée par un Agent Commercial Partenaire.
Mentions légales
Terrain proposé par un partenaire foncier selon disponibilités et autorisation de publicité au prix de 160 000 €. Hors droit d'enregistrement et frais de notaire. Maison proposée, avec un contrat de construction de maison individuelle, dans le cadre de la loi du 19/12/1990, au prix de 160 000 € (Hors branchements et raccordements, papiers peints, peintures, revêtement de sol dans les chambres, qui sont chiffrés dans les travaux qui restent à charge du client. Tarif modifiable sans préavis). Étiquette énergie : A. Différents modèles disponibles pour ce terrain. Assurances et garanties du constructeur comprises (RC professionnelle, décennale, dommage ouvrage).Agence Maisons Balency de Baillet-en-France (95560)
- Téléphone :
- 01 34 46 05 23
- Adressse :
- 81 rue de Paris
95560 Baillet-en-France, France
