Maison neuve à
Butry-sur-Oise
(95430) Référence :
MU2275794_4
Prix du projet : Maison avec Terrain
prix 290 000 €
- 5 pièces
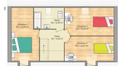
- 3 chambres
- Surface maison 80 m2
VENTE : maison de 5 pièces (80 m²) à Butry-sur-Oise
IDÉALEMENT SITUÉE - MAISON 5 PIÈCES NEUVE
À 910 m du Transilien H (gare de Valmondois, 45 min de Paris), à vendre idéalement située dans Butry-sur-Oise (95430), Maisons Balency Baillet-en-France vous présente cette maison de 5 pièces de 80 m². Elle offre trois chambres, une cuisine et une salle de bains.
Le terrain de la maison est de 308 m².
Cette maison comporte 2 niveaux. Elle est neuve.
Ce bien se situe dans un quartier prisé. L'École Primaire Publique Raoul Sales et l'École Secondaire Privée Pierre Gilles de Gennes se trouvent à moins de 10 minutes à pied. Côté transports, il y a la gare Valmondois à quelques pas de la maison. On trouve une bibliothèque, deux tennis, une boulangerie et deux commerces à proximité de la maison.
Il est proposé à l'achat pour 290 000 €.
N'hésitez pas à prendre contact avec Mylann URBANSKY (tél : 06-23-32-28-23) pour obtenir de plus amples informations sur la maison. Maisons Balency Baillet-en-France vous accompagne dans toutes vos démarches et dans tous vos projets immobiliers.
Annonce proposée par un Agent Commercial Partenaire.
Mentions légales
Terrain proposé par un partenaire foncier selon disponibilités et autorisation de publicité au prix de 139 000 €. Hors droit d'enregistrement et frais de notaire. Maison proposée, avec un contrat de construction de maison individuelle, dans le cadre de la loi du 19/12/1990, au prix de 151 000 € (Hors branchements et raccordements, papiers peints, peintures, revêtement de sol dans les chambres, qui sont chiffrés dans les travaux qui restent à charge du client. Tarif modifiable sans préavis). Étiquette énergie : A. Différents modèles disponibles pour ce terrain. Assurances et garanties du constructeur comprises (RC professionnelle, décennale, dommage ouvrage).Agence Maisons Balency de Baillet-en-France (95560)
- Téléphone :
- 01 34 46 05 23
- Adressse :
- 81 rue de Paris
95560 Baillet-en-France, France
