Maison neuve à
Cachan
(94230) Référence :
CM2286260_1
Prix du projet : Maison avec Terrain
prix 549 000 €
- 6 pièces
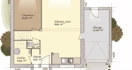
- 4 chambres
- Surface maison 98 m2
Cachan : maison F6 (98 m²) à vendre
MAISON 6 PIÈCES NEUVE
À vendre : au pied de la station Bagneux (Paris à 5 min avec le RER B), votre agence Maisons Balency Saint-Maur-des-Fossés est heureuse de vous proposer cette maison de 6 pièces de 98 m² et de 208 m² de terrain à Cachan (94230). Elle propose quatre chambres, une cuisine et une salle de bains.
Cette maison compte 2 niveaux. Elle est neuve.
On trouve des établissements scolaires de tous niveaux (de la maternelle au lycée) à moins de 10 minutes à pied, six structures d'accueil pour les enfants en bas âge, tout comme deux établissements du supérieur dans les environs : l'EPF-École d'ingénieurs et l'École spéciale des travaux publics, du bâtiment et de l'industrie. Côté transports en commun, il y a la ligne de RER B (Bagneux). On trouve une bibliothèque, un bassin de natation, un tennis, des commerces, des boulangeries, trois supermarchés, un bureau de poste et des épiceries à quelques minutes de la maison.
Son prix de vente est de 549 000 €.
Contactez notre constructeur (Christophe MONTANIER : 06-10-23-51-22) pour tout renseignement sur cette maison. Maisons Balency Saint-Maur-des-Fossés est là pour vous accompagner à toutes les étapes de l'achat.
Annonce proposée par un Agent Commercial Partenaire.
Mentions légales
Terrain proposé par un partenaire foncier selon disponibilités et autorisation de publicité au prix de 299 000 €. Hors droit d'enregistrement et frais de notaire. Maison proposée, avec un contrat de construction de maison individuelle, dans le cadre de la loi du 19/12/1990, au prix de 250 000 € (Hors branchements et raccordements, papiers peints, peintures, revêtement de sol dans les chambres, qui sont chiffrés dans les travaux qui restent à charge du client. Tarif modifiable sans préavis). Étiquette énergie : A. Différents modèles disponibles pour ce terrain. Assurances et garanties du constructeur comprises (RC professionnelle, décennale, dommage ouvrage).Agence Maisons Balency de Saint-Maur-des-Fossés (94100)
- Téléphone :
- 01 87 36 85 37
- Adressse :
- 12 avenue de la république
94100 Saint-Maur-des-Fossés, France
