Maison neuve à
Cachan
(94230) Référence :
AM2446376_3
Prix du projet : Maison avec Terrain
prix 505 000 €
- 6 pièces
- 4 chambres
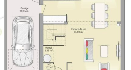
- Surface maison 91 m2
VENTE : maison de 6 pièces (91 m²) à Cachan
MAISON 6 PIÈCES NEUVE
En vente : au pied de la station Bagneux (Paris à 5 min par le RER B), à Cachan (94230), laissez vous charmer par cette maison de 6 pièces de 91 m². Son intérieur inclut quatre chambres, une cuisine et une salle de bains.
Le terrain de la maison est de 223 m².
Cette maison comporte 2 niveaux. Elle est neuve.
Tous les types d'établissements scolaires (maternelle, élémentaire et secondaire) se trouvent à moins de 10 minutes à pied, six crèches, tout comme deux établissements du supérieur à quelques pas de la maison : l'EPF-École d'ingénieurs et l'École spéciale des travaux publics, du bâtiment et de l'industrie. Côté transports en commun, il y a la ligne de RER B (Bagneux). On trouve une bibliothèque, un bassin de natation, deux tennis, des commerces, un bureau de poste, une supérette, une boucherie-charcuterie et des épiceries dans les environs.
Elle est proposée à l'achat pour 505 000 €.
Contactez notre agence (MONTANIER Aurelien : 06-24-66-88-34) pour obtenir de plus amples renseignements sur cette maison ou sur les démarches à suivre.
Annonce proposée par un Agent Commercial Partenaire.
Mentions légales
Terrain proposé par un partenaire foncier selon disponibilités et autorisation de publicité au prix de 300 000 €. Hors droit d'enregistrement et frais de notaire. Terrain + Maison proposés au prix de 505 000 € (Hors branchements et raccordements, papiers peints, peintures, revêtement de sol dans les chambres. Tarif modifiable sans préavis). Etiquette énergie : A. Différents modèles disponibles pour ce terrain. Assurances et garanties du constructeur (RC professionnelle, décennale, dommage ouvrage, garantie de remboursement de l'acompte, livraison à prix et délai convenu) : https://www.maisons-balency.fr/informations-legales/. HEXAOM Services est enregistré auprès de l'ORIAS en tant que Courtier en financement, Niveau 1, sous le numéro 14001345.Agence Maisons Balency de Saint-Maur-des-Fossés (94100)
- Téléphone :
- 01 87 36 85 37
- Adressse :
- 12 avenue de la république
94100 Saint-Maur-des-Fossés, France
