Maison neuve à
Cailly-sur-Eure (27490) Référence : KG2423118_6

Prix du projet : Maison avec Terrain

prix 351 000 €

  • 5 pièces
  • 3 chambres
  • Surface maison 120 m2

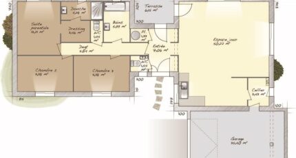
VENTE d'une maison de 5 pièces (120 m²) à Cailly-sur-Eure
PROCHE D'ÉVREUX - MAISON 5 PIÈCES NEUVE
En vente : Jolie maison de plain pied de 120 m² habitables, spacieuse et lumineuse. Elle se compose d'un espace nuit bien séparé des pièces de vies par une entrée avec rangements et placards. 3 chambres dont une suite parentale avec dressing et salle deau privative, et une seconde salle de bain. Vous trouverez également 2 WC indépendants, une grande cuisine ouverte sur séjour avec des baies coulissantes, et un cellier donnant sur un grand garage.
Prestations de qualités ; plancher chauffant, matériaux haut de gamme et finitions soignées.
Prenez contact avec Karen GOHIER (06 71 52 61 13) pour tout renseignement sur ce modèle.

Annonce proposée par un Agent Commercial Partenaire.

Mentions légales

Terrain proposé par un partenaire foncier selon disponibilités et autorisation de publicité au prix de 79 000 €. Hors droit d'enregistrement et frais de notaire. Terrain + Maison proposés au prix de 351 000 € (Hors branchements et raccordements, papiers peints, peintures, revêtement de sol dans les chambres. Tarif modifiable sans préavis). Etiquette énergie : A. Différents modèles disponibles pour ce terrain. Assurances et garanties du constructeur (RC professionnelle, décennale, dommage ouvrage, garantie de remboursement de l'acompte, livraison à prix et délai convenu) : https://www.maisons-balency.fr/informations-legales/. HEXAOM Services est enregistré auprès de l'ORIAS en tant que Courtier en financement, Niveau 1, sous le numéro 14001345.

Contactez l'agence de Louviers

02 32 51 43 53

    * Champs obligatoires

    Vos informations sont traitées par HEXAOM et transmises à un conseiller commercial qui vous contactera afin de répondre à votre demande. Les plans et images présentés sur notre site sont la propriété d’HEXAOM et ne peuvent pas être reproduits sans son accord. Pour retrouver notre politique de protection des données personnelles et exercer vos droits conformément à la « loi informatique et liberté » cliquez-ici.