Maison neuve à
Canappeville (27400) Référence : KB2429389_3

Prix du projet : Maison avec Terrain

prix 365 000 €

  • 9 pièces
  • 4 chambres
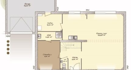
  • Surface maison 186 m2

Canappeville : maison F9 (186 m²) en vente
IDÉALEMENT SITUÉE - MAISON 9 PIÈCES NEUVE
En vente à 16 km d'Évreux, nous sommes heureux de vous proposer cette maison de 9 pièces de 186 m² idéalement située dans Canappeville (27400). Elle compte quatre chambres, une cuisine et deux salles de bains.
Le terrain de la propriété s'étend sur 866 m².
C'est une maison de 2 niveaux. Elle est neuve.
Cette maison se situe dans un secteur prisé. On y trouve une école primaire. L'autoroute A154 et la nationale N154 sont accessibles à moins de 6 km.
Son prix de vente est de 365 000 €.
Prenez contact avec Kamel BAZIZ (tél : 07-80-36-63-82) pour tout renseignement sur la maison. Donnez vie à vos projets immobiliers avec Maisons Balency Boos.

Annonce proposée par un Agent Commercial Partenaire.

Mentions légales

Terrain proposé par un partenaire foncier selon disponibilités et autorisation de publicité au prix de 55 000 €. Hors droit d'enregistrement et frais de notaire. Terrain + Maison proposés au prix de 365 000 € (Hors branchements et raccordements, papiers peints, peintures, revêtement de sol dans les chambres. Tarif modifiable sans préavis). Etiquette énergie : A. Différents modèles disponibles pour ce terrain. Assurances et garanties du constructeur (RC professionnelle, décennale, dommage ouvrage, garantie de remboursement de l'acompte, livraison à prix et délai convenu) : https://www.maisons-balency.fr/informations-legales/. HEXAOM Services est enregistré auprès de l'ORIAS en tant que Courtier en financement, Niveau 1, sous le numéro 14001345.

Contactez l'agence de Boos

02 35 80 66 66

    * Champs obligatoires

    Vos informations sont traitées par HEXAOM et transmises à un conseiller commercial qui vous contactera afin de répondre à votre demande. Les plans et images présentés sur notre site sont la propriété d’HEXAOM et ne peuvent pas être reproduits sans son accord. Pour retrouver notre politique de protection des données personnelles et exercer vos droits conformément à la « loi informatique et liberté » cliquez-ici.