Maison neuve à
Canapville
(14800) Référence :
SU2383747_1
Prix du projet : Maison avec Terrain
prix 497 900 €
- 7 pièces
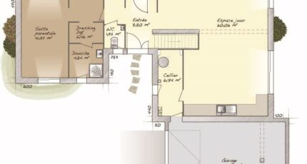
- 5 chambres
- Surface maison 170 m2
Maison T7 (170 m²) à vendre à Canapville
EMPLACEMENT PRIVILÉGIÉ - MAISON 7 PIÈCES NEUVE
Offrez-vous l'exception à deux pas de la mer !
À Canapville (14800), à 10 minutes de Pont-l'Évêque, des plages de Deauville, de l'hippodrome de la Touques, de l'hippodrome de Clairefontaine et de tous les services proposés par la célèbre station balnéaire : port de plaisance, golf, casino, commerces, restaurants, nous sommes heureux de vous présenter cette maison de 7 pièces de plain-pied de 170 m².
Conçue de plain-pied, elle se divise en cinq chambres, une cuisine et trois salles de bains. Cette maison est neuve.
Le terrain du bien est de 753 m².
Cette propriété bénéficie d'un emplacement d'exception, elle se situe dans un domaine clôturé, au coeur d'un grand parc arboré. Des écoles (de la maternelle au lycée) se trouvent à moins de 10 minutes en voiture. À 2 heures de Paris, accessible depuis les gares de Deauville et de Pont-l'Évêque. Les autoroutes A132, A13 et A29 sont accessibles à moins de 9 km.
Son prix de vente est de 497 900 €.
Prenez contact avec Sophie UCENDO (06-35-39-35-17) pour toute question sur la maison, sur les démarches à suivre ou sur les modalités de vente. Concrétisez vos projets immobiliers avec Maisons Balency Caen.
Mentions légales
Terrain proposé par un partenaire foncier selon disponibilités et autorisation de publicité au prix de 168 000 €. Hors droit d'enregistrement et frais de notaire. Terrain + Maison proposés au prix de 497 900 € (Hors branchements et raccordements, papiers peints, peintures, revêtement de sol dans les chambres. Tarif modifiable sans préavis). Etiquette énergie : A. Différents modèles disponibles pour ce terrain. Assurances et garanties du constructeur (RC professionnelle, décennale, dommage ouvrage, garantie de remboursement de l'acompte, livraison à prix et délai convenu) : https://www.maisons-balency.fr/informations-legales/. HEXAOM Services est enregistré auprès de l'ORIAS en tant que Courtier en financement, Niveau 1, sous le numéro 14001345.Agence Maisons Balency de Caen (14000)
- Téléphone :
- 02 31 50 38 15
- Adressse :
- 133, rue Saint Jean
14000 Caen, France
