Maison neuve à
Carnas (30260) Référence : PP2361051_1

Prix du projet : Maison avec Terrain

prix 363 300 €

  • 5 pièces
  • 3 chambres
  • Surface maison 95 m2

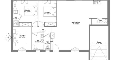
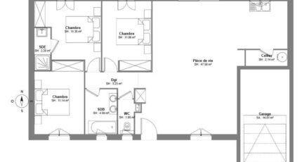
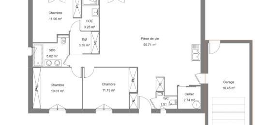
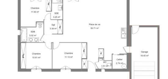
VENTE : maison de 5 pièces (95 m²) à Carnas
IDÉALEMENT SITUÉE - MAISON 5 PIÈCES NEUVE
À vendre : située à 31 km de la mer Méditerranée et à 26 km de Montpellier, idéalement située dans Carnas (30260), nous vous proposons cette maison de 5 pièces de plain-pied de 95 m². Conçue de plain-pied, elle offre trois chambres, une cuisine et deux salles de bains.
Le terrain de la propriété est de 786 m².
La maison est neuve.
La maison est située dans un secteur convoité. Une école élémentaire y est implantée. Les autoroutes A9 et A709 et la nationale N113 sont accessibles à moins de 20 km. Il y a un commerce dans les environs.
Elle est proposée à l'achat pour 363 300 €.
Contactez notre agence (PIEL Pascale : O6-O1-26-64-83) pour tout renseignement sur la propriété.

Mentions légales

Terrain proposé par un partenaire foncier selon disponibilités et autorisation de publicité au prix de 179 900 €. Hors droit d'enregistrement et frais de notaire. Terrain + Maison proposés au prix de 183 400 € (Hors branchements et raccordements, papiers peints, peintures, revêtement de sol dans les chambres. Tarif modifiable sans préavis). Etiquette énergie : A. Différents modèles disponibles pour ce terrain. Assurances et garanties du constructeur (RC professionnelle, décennale, dommage ouvrage, garantie de remboursement de l'acompte, livraison à prix et délai convenu) : https://www.maisons-balency.fr/informations-legales/. HEXAOM Services est enregistré auprès de l'ORIAS en tant que Courtier en financement, Niveau 1, sous le numéro 14001345.

Contactez l'agence de Uzès

04 66 57 25 45

    * Champs obligatoires

    Vos informations sont traitées par HEXAOM et transmises à un conseiller commercial qui vous contactera afin de répondre à votre demande. Les plans et images présentés sur notre site sont la propriété d’HEXAOM et ne peuvent pas être reproduits sans son accord. Pour retrouver notre politique de protection des données personnelles et exercer vos droits conformément à la « loi informatique et liberté » cliquez-ici.