Maison neuve à
Castillon-du-Gard (30210) Référence : PP2317362_2

Prix du projet : Maison avec Terrain

prix 374 000 €

  • 6 pièces
  • 3 chambres
  • Surface maison 100 m2

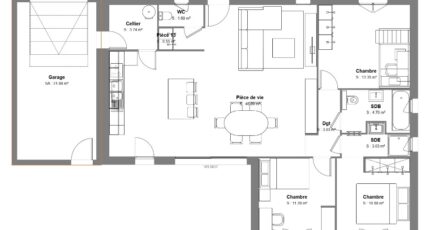
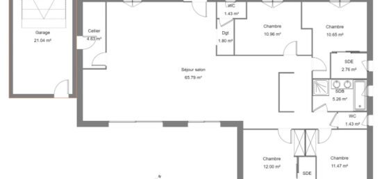
Maison de 6 pièces (100 m²) à vendre à Castillon-du-Gard
IDÉALEMENT SITUÉE - MAISON 6 PIÈCES NEUVE
À vendre : à 47 km de la mer Méditerranée et à 24 km de Nîmes, notre agence Maisons Balency Uzès est heureuse de vous proposer cette maison de 6 pièces de plain-pied de 100 m² et de 981 m² de terrain idéalement située dans Castillon-du-Gard (30210). Son intérieur inclut trois chambres, une cuisine et deux salles de bains.
La maison est neuve.
Cette maison est située dans un quartier prisé. On y trouve une école primaire ainsi qu'une structure d'accueil pour les enfants en bas âge. L'autoroute A9 et la nationale N100 sont accessibles à moins de 5 km. Il y a trois boulangeries dans les environs.
Elle est à vendre pour la somme de 374 000 €.
Contactez Pascale PIEL (tél : O6-O1-26-64-83) pour tout renseignement sur la maison. Maisons Balency Uzès est là pour vous accompagner dans toutes vos démarches.

Mentions légales

Terrain proposé par un partenaire foncier selon disponibilités et autorisation de publicité au prix de 165 000 €. Hors droit d'enregistrement et frais de notaire. Terrain + Maison proposés au prix de 209 000 € (Hors branchements et raccordements, papiers peints, peintures, revêtement de sol dans les chambres. Tarif modifiable sans préavis). Etiquette énergie : A. Différents modèles disponibles pour ce terrain. Assurances et garanties du constructeur (RC professionnelle, décennale, dommage ouvrage, garantie de remboursement de l'acompte, livraison à prix et délai convenu) : https://www.maisons-balency.fr/informations-legales/. HEXAOM Services est enregistré auprès de l'ORIAS en tant que Courtier en financement, Niveau 1, sous le numéro 14001345.

Contactez l'agence de Uzès

04 66 57 25 45

    * Champs obligatoires

    Vos informations sont traitées par HEXAOM et transmises à un conseiller commercial qui vous contactera afin de répondre à votre demande. Les plans et images présentés sur notre site sont la propriété d’HEXAOM et ne peuvent pas être reproduits sans son accord. Pour retrouver notre politique de protection des données personnelles et exercer vos droits conformément à la « loi informatique et liberté » cliquez-ici.