Maison neuve à
Castries
(34160) Référence :
CJ2300651_2
Prix du projet : Maison avec Terrain
prix 750 000 €
- 6 pièces
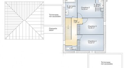
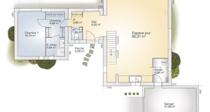
- 4 chambres
- Surface maison 170 m2
VENTE : maison de 6 pièces (170 m²) à Castries
IDÉALEMENT SITUÉE - MAISON 6 PIÈCES NEUVE
À vendre à 15 km de la mer Méditerranée et à quelques kilomètres de Montpellier, venez découvrir, idéalement située dans Castries (34160), cette maison de 6 pièces de 170 m² et de 700 m² de terrain.
Cette maison possède 2 niveaux. Elle est composée de quatre chambres, d'une cuisine et de deux salles de bains. Cette maison est neuve.
La maison est située dans un secteur attractif. On trouve l'École Primaire Privée Sainte Marie, l'École Élémentaire Marcel Pagnol, l'École Maternelle le Chat Perché de la Guesse et le Collège les Pins à moins de 10 minutes à pied et deux structures d'accueil pour les enfants en bas âge. Côté transports, il y a quatre gares à moins de 10 minutes en voiture. L'autoroute A709 et la nationale N113 sont accessibles à moins de 3 km. On trouve des commerces, une boulangerie, un supermarché, une boucherie-charcuterie et une épicerie à quelques minutes de la maison.
Elle est proposée à l'achat pour 750 000 €.
N'hésitez pas à prendre contact avec Cédric (06-30-92-83-25) pour toute information sur le bien.
Mentions légales
Terrain proposé par un partenaire foncier selon disponibilités et autorisation de publicité au prix de 350 000 €. Hors droit d'enregistrement et frais de notaire. Terrain + Maison proposés au prix de 400 000 € (Hors branchements et raccordements, papiers peints, peintures, revêtement de sol dans les chambres. Tarif modifiable sans préavis). Etiquette énergie : A. Différents modèles disponibles pour ce terrain. Assurances et garanties du constructeur (RC professionnelle, décennale, dommage ouvrage, garantie de remboursement de l'acompte, livraison à prix et délai convenu) : https://www.maisons-balency.fr/informations-legales/. HEXAOM Services est enregistré auprès de l'ORIAS en tant que Courtier en financement, Niveau 1, sous le numéro 14001345.Agence Maisons Balency de Castries (34160)
- Téléphone :
- 04 99 62 92 10
- Adressse :
- 138, avenue de la Royale
34160 Castries, France
