Maison neuve à
Cerny
(91590) Référence :
PM2320201_1
Prix du projet : Maison avec Terrain
prix 373 000 €
- 6 pièces
- 4 chambres
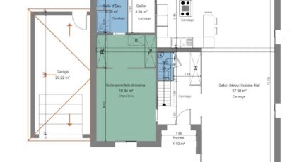
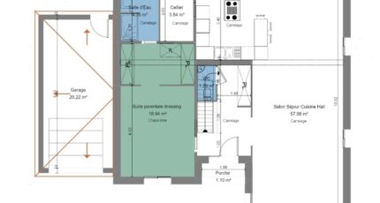
- Surface maison 150 m2
Proche Cerny (91590) : Superbe Trianon des Maisons Balency d'Ormoy à Bâtir, dès 373 000 €
Demeure Haut-de-Gamme de 150 m² réalisable sur un vaste terrain de 870 m²
À seulement cinq minutes de Cerny, découvrez ce magnifique projet de maison contemporaine de 4 chambres et de 3 salles-de-bains, à réaliser sur un terrain spacieux de 870 m² offrant 60 mètres de profondeur.
Situé dans un cadre calme et verdoyant au coeur de l'Essonne, ce futur havre de confort bénéficie d'un emplacement privilégié à proximité de toutes commodités : écoles, commerces, supermarché Carrefour Market et collège Georges Pompidou accessibles en quelques minutes. La gare de La Ferté-Alais, sur la ligne RER D, permet de rejoindre Paris en moins d'une heure. Les villes dynamiques d'Étampes et d'Arpajon se trouvent à une vingtaine de minutes, offrant un large éventail de services, établissements scolaires et activités.
Chez Les Maisons Balency d'Ormoy, membre du Groupe Hexaôm, 1er constructeur de maisons individuelles en France, nous concevons des habitations entièrement sur-mesure ou personnalisons nos modèles de catalogue selon vos envies. Toutes nos réalisations respectent les dernières normes RE2020, assurant un excellent niveau de performance énergétique (DPE A ou B).
Notre agence d'Ormoy vous accompagne dans toutes les étapes de votre projet de construction, de la recherche du terrain à la remise des clés. Pour plus d'informations, contactez-nous au 09 67 70 15 81 et donnez vie à votre projet de maison contemporaine en Essonne.
Annonce proposée par un Agent Commercial Partenaire.
Mentions légales
Terrain proposé par un partenaire foncier selon disponibilités et autorisation de publicité au prix de 103 000 €. Hors droit d'enregistrement et frais de notaire. Maison proposée, avec un contrat de construction de maison individuelle, dans le cadre de la loi du 19/12/1990, au prix de 270 000 € (Hors branchements et raccordements, papiers peints, peintures, revêtement de sol dans les chambres, qui sont chiffrés dans les travaux qui restent à charge du client. Tarif modifiable sans préavis). Étiquette énergie : A. Différents modèles disponibles pour ce terrain. Assurances et garanties du constructeur comprises (RC professionnelle, décennale, dommage ouvrage).Agence Maisons Balency de Ormoy (91540)
- Téléphone :
- 09 67 70 15 81
- Adressse :
- 23 chemin de Tournenfils - 1er étage
91540 Ormoy, France
