Maison neuve à
Cerny
(91590) Référence :
PM2320201_3
Prix du projet : Maison avec Terrain
prix 416 000 €
- 6 pièces
- 5 chambres
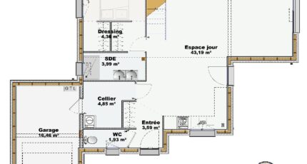
- Surface maison 114 m2
Devenez Propriétaire avec les Maisons Balency d'Ormoy !
Demeure Haut-de-Gamme en Bois à bâtir à 5 min de CERNY (91590), à partir de 416 000 €
Vivez l'expérience d'une maison environnementale d'exception avec le modèle "Canopée" des Maisons Balency Ormoy : une maison contemporaine en ossature bois de 114 m², à construire sur un terrain de 870 m² profond de 60 mètres.
🌿 Une maison durable et performante :
- Ossature bois à haut rendement énergétique - 2x plus isolante que le béton ou la brique
- Isolation renforcée intérieure et extérieure (R = 6,56 m².C°/W)
- Aucune déperdition thermique, confort été comme hiver
- 60 % d'impact en moins sur le climat et 65 % de déchets en moins sur le chantier
- Bois issu de forêts éco-gérées, bilan carbone positif
- 80 % de consommation d'eau en moins pendant la conception
- Chantier rapide : murs préfabriqués livrés et montés en 1 journée
- Aucun entretien nécessaire, qualité certifiée Fabrication Française
Un habitat écologique et économique :
Conçue pour limiter les déperditions et optimiser la gestion de l'énergie, la maison "Canopée" vous permet de réduire durablement vos factures tout en contribuant à la transition énergétique.
Un Accompagnement complet :
Maisons Balency Ormoy vous accompagne à chaque étape : recherche du terrain, étude personnalisée, démarches administratives.
📞 Contactez Les Maisons Balency d'Ormoy sans plus attendre au 09 67 70 15 81 !
Annonce proposée par un Agent Commercial Partenaire.
Mentions légales
Terrain proposé par un partenaire foncier selon disponibilités et autorisation de publicité au prix de 103 000 €. Hors droit d'enregistrement et frais de notaire. Terrain + Maison proposés au prix de 416 000 € (Hors branchements et raccordements, papiers peints, peintures, revêtement de sol dans les chambres. Tarif modifiable sans préavis). Etiquette énergie : A. Différents modèles disponibles pour ce terrain. Assurances et garanties du constructeur (RC professionnelle, décennale, dommage ouvrage, garantie de remboursement de l'acompte, livraison à prix et délai convenu) : https://www.maisons-balency.fr/informations-legales/. HEXAOM Services est enregistré auprès de l'ORIAS en tant que Courtier en financement, Niveau 1, sous le numéro 14001345.Agence Maisons Balency de Ormoy (91540)
- Téléphone :
- 09 67 70 15 81
- Adressse :
- 23 chemin de Tournenfils - 1er étage
91540 Ormoy, France
