Maison neuve à
Cessenon-sur-Orb (34460) Référence : LR2451896_6

Prix du projet : Maison avec Terrain

prix 360 000 €

  • 6 pièces
  • 4 chambres
  • Surface maison 125 m2

VENTE : maison de 6 pièces (125 m²) à Cessenon-sur-Orb
EMPLACEMENT PRIVILÉGIÉ - MAISON 6 PIÈCES NEUVE
En vente à 34 km de la côte méditerranéenne et à quelques kilomètres de Béziers, nous sommes heureux de vous proposer, bénéficiant d'un emplacement privilégié dans Cessenon-sur-Orb (34460), cette maison de 6 pièces de 125 m² et de 519 m² de terrain.
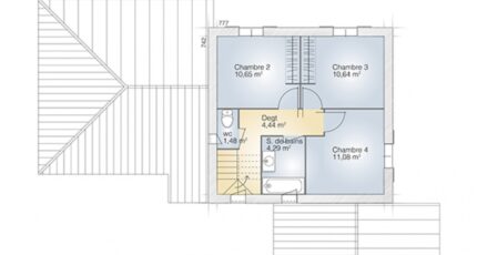
C'est une maison de 2 niveaux. Son intérieur dispose de quatre chambres, d'une cuisine et de deux salles de bains. La maison est neuve.
Cette maison est située dans un secteur convoité. Trois établissements scolaires sont implantés à moins de 10 minutes à pied, tout comme dont le Collège Basile Rouaix, Unité Pédagogique de Proximité Collège Jean Jaurès Saint-Chinian et l'École Élémentaire les Oliviers. Il y a un tennis, un commerce, une boucherie-charcuterie et un bureau de poste à proximité.
Son prix de vente est de 360 000 €.
Prenez contact avec Léo RENARD (tél : 06-13-67-09-81) pour plus de renseignements sur le bien, sur les démarches à suivre ou sur les modalités de vente. Faites de vos projets immobiliers une réalité avec Maisons Balency Pézenas.

Mentions légales

Terrain proposé par un partenaire foncier selon disponibilités et autorisation de publicité au prix de 92 000 €. Hors droit d'enregistrement et frais de notaire. Terrain + Maison proposés au prix de 360 000 € (Hors branchements et raccordements, papiers peints, peintures, revêtement de sol dans les chambres. Tarif modifiable sans préavis). Etiquette énergie : A. Différents modèles disponibles pour ce terrain. Assurances et garanties du constructeur (RC professionnelle, décennale, dommage ouvrage, garantie de remboursement de l'acompte, livraison à prix et délai convenu) : https://www.maisons-balency.fr/informations-legales/. HEXAOM Services est enregistré auprès de l'ORIAS en tant que Courtier en financement, Niveau 1, sous le numéro 14001345.

Contactez l'agence de Pézenas

04 99 43 05 21

    * Champs obligatoires

    Vos informations sont traitées par HEXAOM et transmises à un conseiller commercial qui vous contactera afin de répondre à votre demande. Les plans et images présentés sur notre site sont la propriété d’HEXAOM et ne peuvent pas être reproduits sans son accord. Pour retrouver notre politique de protection des données personnelles et exercer vos droits conformément à la « loi informatique et liberté » cliquez-ici.