Maison neuve à
Chailly-en-Bière
(77930) Référence :
AM2352856_1
Prix du projet : Maison avec Terrain
prix 275 308 €
- 4 pièces
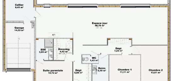
- 2 chambres
- Surface maison 60 m2
PROJET TERRAIN + MAISON + NOTAIRE + VIABILISATION = 275 308€
Au pied du Transilien R (gare de Bois-le-Roi, 35 min de Paris), en vente bénéficiant d'un emplacement privilégié dans Chailly-en-Bière (77930), nous vous présentons cette maison de 4 pièces de plain-pied de 60 m². Elle compte deux chambres, une cuisine et une salle de bains.
Le terrain de la propriété s'étend sur 503 m².
La maison est neuve.
Cette maison se trouve dans un secteur recherché. Il y a des établissements scolaires primaires à moins de 10 minutes à pied et dont l'École Élémentaire Rosa Bonheur. Niveau transports, on trouve la ligne de RER D (Vosves) ainsi que huit gares à moins de 10 minutes en voiture. On trouve une bibliothèque, une boulangerie, deux commerces, un bureau de poste et une épicerie dans les environs.
Elle est proposée à l'achat pour 275 308 €.
Prenez contact avec Arnaud MOINE (06-40-48-40-55) pour plus de renseignements sur la maison. Maisons Balency Moret-Loing-et-Orvanne vous accompagne dans tous vos projets immobiliers et à toutes les étapes de votre projet.
Annonce proposée par un Agent Commercial Partenaire.
Mentions légales
Terrain proposé par un partenaire foncier selon disponibilités et autorisation de publicité au prix de 135 500 €. Hors droit d'enregistrement et frais de notaire. Maison proposée, avec un contrat de construction de maison individuelle, dans le cadre de la loi du 19/12/1990, au prix de 139 808 € (Hors branchements et raccordements, papiers peints, peintures, revêtement de sol dans les chambres, qui sont chiffrés dans les travaux qui restent à charge du client. Tarif modifiable sans préavis). Étiquette énergie : A. Différents modèles disponibles pour ce terrain. Assurances et garanties du constructeur comprises (RC professionnelle, décennale, dommage ouvrage).Agence Maisons Balency de Moret-sur-Loing (77250)
- Téléphone :
- 09 78 81 26 91
- Adressse :
- 96 avenue de Fontainebleau
77250 Moret-sur-Loing, France
