Maison neuve à
Chalifert
(77144) Référence :
AM2355041_1
Prix du projet : Maison avec Terrain
prix 460 000 €
- 6 pièces
- 4 chambres
- Surface maison 117 m2
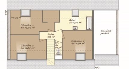
Maison de 6 pièces (117 m²) en vente à Chalifert
PROCHE DE SAINT-DENIS - MAISON 6 PIÈCES NEUVE
En vente : à proximité du Transilien P (gare d'Esbly, 30 min de Paris), Maisons Balency Saint-Maur-des-Fossés vous présente à Chalifert (77144), cette maison de 6 pièces de plain-pied de 117 m² et de 923 m² de terrain.
Conçue de plain-pied, elle propose quatre chambres, une cuisine et deux salles de bains. Cette maison est neuve.
Il y a l'École Primaire Clos de la Fontaine à moins de 10 minutes à pied. Côté transports en commun, on trouve la ligne de RER A (Chessy-Marne-La-Vallée) ainsi que sept gares à moins de 10 minutes en voiture. On trouve des commerces à quelques minutes à peine.
Elle est proposée à l'achat pour 460 000 €.
N'hésitez pas à prendre contact avec Aurelien MONTANIER (06-24-66-88-34) pour tout renseignement sur cette maison, sur les modalités de vente ou sur les démarches à suivre. Donnez vie à vos projets immobiliers avec Maisons Balency Saint-Maur-des-Fossés.
Annonce proposée par un Agent Commercial Partenaire.
Mentions légales
Terrain proposé par un partenaire foncier selon disponibilités et autorisation de publicité au prix de 220 000 €. Hors droit d'enregistrement et frais de notaire. Maison proposée, avec un contrat de construction de maison individuelle, dans le cadre de la loi du 19/12/1990, au prix de 240 000 € (Hors branchements et raccordements, papiers peints, peintures, revêtement de sol dans les chambres, qui sont chiffrés dans les travaux qui restent à charge du client. Tarif modifiable sans préavis). Étiquette énergie : A. Différents modèles disponibles pour ce terrain. Assurances et garanties du constructeur comprises (RC professionnelle, décennale, dommage ouvrage).Agence Maisons Balency de Saint-Maur-des-Fossés (94100)
- Téléphone :
- 01 87 36 85 37
- Adressse :
- 12 avenue de la république
94100 Saint-Maur-des-Fossés, France
