Maison neuve à
Chambly
(60230) Référence :
MU2255615_13
Prix du projet : Maison avec Terrain
prix 314 000 €
- 5 pièces
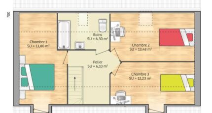
- 3 chambres
- Surface maison 80 m2
Chambly : maison de 5 pièces (80 m²) à vendre
IDÉALEMENT SITUÉE - MAISON 5 PIÈCES NEUVE
À quelques kilomètres de Saint-Denis, à vendre idéalement située dans Chambly (60230), votre agence Maisons Balency Pierrelaye est ravie de vous présenter cette maison de 5 pièces de 80 m² et de 304 m² de terrain. Elle dispose de trois chambres, d'une cuisine et d'une salle de bains.
C'est une maison de 2 niveaux. Elle est neuve.
Cette propriété est située dans un secteur recherché. Plusieurs écoles (maternelle, élémentaire, primaire et collège) sont implantées à moins de 10 minutes à pied. Niveau transports en commun, il y a la gare Chambly dans un rayon de 1 km. L'autoroute A16 et la nationale N184 sont accessibles à moins de 8 km. On trouve une bibliothèque, un tennis, un bassin de natation, trois boulangeries, des commerces, un bureau de poste, une boucherie-charcuterie et deux épiceries à quelques minutes de la maison. Enfin, le marché Place de Gaulle anime le quartier.
Elle est proposée à l'achat pour 314 000 €.
Prenez contact avec Mylann URBANSKY (tél : 06-23-32-28-23) pour toute question sur la maison, sur les démarches à suivre ou sur les modalités de vente. Maisons Balency Pierrelaye est là pour vous accompagner à toutes les étapes de votre projet.
Annonce proposée par un Agent Commercial Partenaire.
Mentions légales
Terrain proposé par un partenaire foncier selon disponibilités et autorisation de publicité au prix de 164 000 €. Hors droit d'enregistrement et frais de notaire. Maison proposée, avec un contrat de construction de maison individuelle, dans le cadre de la loi du 19/12/1990, au prix de 150 000 € (Hors branchements et raccordements, papiers peints, peintures, revêtement de sol dans les chambres, qui sont chiffrés dans les travaux qui restent à charge du client. Tarif modifiable sans préavis). Étiquette énergie : A. Différents modèles disponibles pour ce terrain. Assurances et garanties du constructeur comprises (RC professionnelle, décennale, dommage ouvrage).Agence Maisons Balency de Baillet-en-France (95560)
- Téléphone :
- 01 34 46 05 23
- Adressse :
- 81 rue de Paris
95560 Baillet-en-France, France
