Maison neuve à
Chambly
(60230) Référence :
MU2255615_7
Prix du projet : Maison avec Terrain
prix 324 000 €
- 5 pièces
- 3 chambres
- Surface maison 90 m2
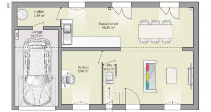
VENTE d'une maison de 5 pièces (90 m²) à Chambly
IDÉALEMENT SITUÉE - MAISON 5 PIÈCES NEUVE
En vente à deux pas de Saint-Denis, idéalement située dans Chambly (60230), nous vous présentons cette maison de 5 pièces de 90 m².
Cette maison comporte 2 niveaux. Elle est composée de trois chambres, d'une cuisine et d'une salle de bains. Cette maison est neuve.
Le terrain de la propriété s'étend sur 304 m².
Ce bien se situe dans un quartier convoité. Plusieurs écoles (maternelle, élémentaire, primaire et collège) se trouvent à moins de 10 minutes à pied. Niveau transports en commun, il y a la gare Chambly dans les environs. L'autoroute A16 et la nationale N184 sont accessibles à moins de 8 km. On trouve une bibliothèque, un tennis, un bassin de natation, trois boulangeries, des commerces, une boucherie-charcuterie, un bureau de poste et deux épiceries à quelques minutes. Le marché Place de Gaulle anime les environs.
Son prix de vente est de 324 000 €.
Contactez Mylann URBANSKY (tél : 06-23-32-28-23) pour obtenir de plus amples informations sur la maison.
Annonce proposée par un Agent Commercial Partenaire.
Mentions légales
Terrain proposé par un partenaire foncier selon disponibilités et autorisation de publicité au prix de 164 000 €. Hors droit d'enregistrement et frais de notaire. Maison proposée, avec un contrat de construction de maison individuelle, dans le cadre de la loi du 19/12/1990, au prix de 160 000 € (Hors branchements et raccordements, papiers peints, peintures, revêtement de sol dans les chambres, qui sont chiffrés dans les travaux qui restent à charge du client. Tarif modifiable sans préavis). Étiquette énergie : A. Différents modèles disponibles pour ce terrain. Assurances et garanties du constructeur comprises (RC professionnelle, décennale, dommage ouvrage).Agence Maisons Balency de Baillet-en-France (95560)
- Téléphone :
- 01 34 46 05 23
- Adressse :
- 81 rue de Paris
95560 Baillet-en-France, France
