Maison neuve à
Chambly
(60230) Référence :
MU2256538_12
Prix du projet : Maison avec Terrain
prix 305 000 €
- 5 pièces
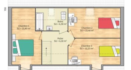
- 3 chambres
- Surface maison 80 m2
Chambly : maison de 5 pièces (80 m²) en vente
IDÉALEMENT SITUÉE - MAISON 5 PIÈCES NEUVE
En vente : à 29 km de Saint-Denis, votre agence Maisons Balency Pierrelaye est ravie de vous proposer cette maison de 5 pièces de 80 m² et de 346 m² de terrain idéalement située dans Chambly (60230).
Il s'agit d'une maison de 2 niveaux. Elle propose trois chambres, une cuisine et une salle de bains. Cette maison est neuve.
La maison se situe dans un secteur prisé. Plusieurs établissements scolaires (maternelle, élémentaire, primaire et collège) sont implantés à moins de 10 minutes à pied. Côté transports, on trouve la gare Chambly à quelques pas du bien. L'autoroute A16 et la nationale N184 sont accessibles à moins de 8 km. Il y a une bibliothèque, un tennis, un bassin de natation, trois boulangeries, des commerces, deux épiceries, un bureau de poste et une boucherie-charcuterie dans les environs. Le marché Place de Gaulle anime le quartier.
Elle est à vendre pour la somme de 305 000 €.
Contactez notre agence (URBANSKY Mylann : 06-23-32-28-23) pour tout renseignement sur la propriété, sur les modalités de vente ou sur les démarches à suivre. Donnez vie à vos projets immobiliers avec Maisons Balency Pierrelaye.
Annonce proposée par un Agent Commercial Partenaire.
Mentions légales
Terrain proposé par un partenaire foncier selon disponibilités et autorisation de publicité au prix de 169 000 €. Hors droit d'enregistrement et frais de notaire. Maison proposée, avec un contrat de construction de maison individuelle, dans le cadre de la loi du 19/12/1990, au prix de 136 000 € (Hors branchements et raccordements, papiers peints, peintures, revêtement de sol dans les chambres, qui sont chiffrés dans les travaux qui restent à charge du client. Tarif modifiable sans préavis). Étiquette énergie : A. Différents modèles disponibles pour ce terrain. Assurances et garanties du constructeur comprises (RC professionnelle, décennale, dommage ouvrage).Agence Maisons Balency de Baillet-en-France (95560)
- Téléphone :
- 01 34 46 05 23
- Adressse :
- 81 rue de Paris
95560 Baillet-en-France, France
