Maison neuve à
Chambly
(60230) Référence :
CT2415276_4
Prix du projet : Maison avec Terrain
prix 369 800 €
- 6 pièces
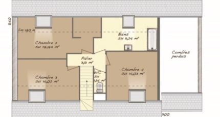
- 4 chambres
- Surface maison 117 m2
VENTE d'une maison de 6 pièces (117 m²) à Chambly
IDÉALEMENT SITUÉE - MAISON 6 PIÈCES NEUVE
À quelques kilomètres de Saint-Denis, Maisons Balency Baillet-en-France vous propose cette maison de 6 pièces de plain-pied de 117 m² à vendre, idéalement située dans Chambly (60230).
Conçue de plain-pied, elle propose quatre chambres, une cuisine et deux salles de bains. La maison est neuve.
Le terrain du bien est de 304 m².
Cette maison est située dans un secteur attractif. Plusieurs établissements scolaires (maternelle, élémentaire, primaire et collège) sont implantés à moins de 10 minutes à pied. Côté transports en commun, il y a la gare Chambly dans un rayon de 1 km. L'autoroute A16 et la nationale N184 sont accessibles à moins de 8 km. On trouve une bibliothèque, un tennis, un bassin de natation, trois boulangeries, des commerces, une boucherie-charcuterie, deux épiceries et un bureau de poste dans les environs. Le marché Place de Gaulle anime les environs.
Son prix de vente est de 369 800 €.
N'hésitez pas à prendre contact avec Christophe TALAMONI (06-49-55-08-27) pour toute question sur la maison ou sur les modalités de vente. Donnez vie à vos projets immobiliers avec Maisons Balency Baillet-en-France.
Annonce proposée par un Agent Commercial Partenaire.
Mentions légales
Terrain proposé par un partenaire foncier selon disponibilités et autorisation de publicité au prix de 139 000 €. Hors droit d'enregistrement et frais de notaire. Terrain + Maison proposés au prix de 369 800 € (Hors branchements et raccordements, papiers peints, peintures, revêtement de sol dans les chambres. Tarif modifiable sans préavis). Etiquette énergie : A. Différents modèles disponibles pour ce terrain. Assurances et garanties du constructeur (RC professionnelle, décennale, dommage ouvrage, garantie de remboursement de l'acompte, livraison à prix et délai convenu) : https://www.maisons-balency.fr/informations-legales/. HEXAOM Services est enregistré auprès de l'ORIAS en tant que Courtier en financement, Niveau 1, sous le numéro 14001345.Agence Maisons Balency de Baillet-en-France (95560)
- Téléphone :
- 01 34 46 05 23
- Adressse :
- 81 rue de Paris
95560 Baillet-en-France, France
