Maison neuve à
Chambourcy
(78240) Référence :
AD2281931_1
Prix du projet : Maison avec Terrain
prix 636 343 €
- 6 pièces
- 3 chambres
- Surface maison 133 m2
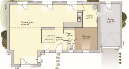
Chambourcy : maison de 6 pièces (133 m²) à vendre
IDÉALEMENT SITUÉE - MAISON 6 PIÈCES NEUVE
En vente : au pied du Transilien J (gare de Poissy, 20 min de Paris), laissez vous charmer par cette maison de 6 pièces de 133 m² et de 585 m² de terrain idéalement située dans Chambourcy (78240). Son intérieur se divise en trois chambres, une cuisine et deux salles de bains.
Cette maison compte 2 niveaux. Elle est neuve.
Le bien se trouve dans un quartier prisé. Il y a l'École Élémentaire Châtaigneraie, l'École Maternelle des Petits Pas et le Collège André Derain à moins de 10 minutes à pied. Niveau transports, on trouve la ligne de RER A (Poissy) ainsi que 2 gares à moins de 10 minutes en voiture. On trouve un tennis, deux supermarchés, des commerces, trois boulangeries, une boucherie-charcuterie et un bureau de poste à quelques minutes.
Il est à vendre pour la somme de 636 343 €.
N'hésitez pas à prendre contact avec Arnaud DUTEURTRE (tél : 06-13-43-01-46) pour plus d'informations sur la maison.
Annonce proposée par un Agent Commercial Partenaire.
Mentions légales
Terrain proposé par un partenaire foncier selon disponibilités et autorisation de publicité au prix de 348 000 €. Hors droit d'enregistrement et frais de notaire. Maison proposée, avec un contrat de construction de maison individuelle, dans le cadre de la loi du 19/12/1990, au prix de 288 343 € (Hors branchements et raccordements, papiers peints, peintures, revêtement de sol dans les chambres, qui sont chiffrés dans les travaux qui restent à charge du client. Tarif modifiable sans préavis). Étiquette énergie : A. Différents modèles disponibles pour ce terrain. Assurances et garanties du constructeur comprises (RC professionnelle, décennale, dommage ouvrage).Agence Maisons Balency de Coignières (78310)
- Téléphone :
- 01 34 61 42 59
- Adressse :
- Domexpo Ouest
78310 Coignières, France
