Maison neuve à
Champagne-sur-Seine
(77430) Référence :
AM2361138_5
Prix du projet : Maison avec Terrain
prix 349 234 €
- 6 pièces
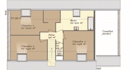
- 4 chambres
- Surface maison 117 m2
PROJET TERRAIN + MAISON + NOTAIRE + VIABILISATION = 349 234€
À vendre : à deux pas de Melun, notre agence Maisons Balency Moret-Loing-et-Orvanne est heureuse de vous présenter, bénéficiant d'un emplacement privilégié dans Champagne-sur-Seine (77430), cette maison de 6 pièces de plain-pied de 117 m² et de 658 m² de terrain. Son intérieur offre quatre chambres, une cuisine et deux salles de bains.
La maison est neuve.
Cette maison est située dans un secteur recherché. Le Lycée Polyvalent la Fayette-Lycée des Métiers de l'Énergie, du Numérique et des Industries de Production Lycée des Métiers du Commerce se trouve à moins de 10 minutes à pied. Côté transports en commun, il y a la gare Champagne-sur-Seine juste à côté. On trouve une bibliothèque, des commerces et un supermarché à quelques minutes à peine.
Elle est proposée à l'achat pour 349 234 €.
Contactez notre constructeur (MOINE Arnaud : 06-40-48-40-55) pour toute information sur la propriété ou sur les modalités de vente. Maisons Balency Moret-Loing-et-Orvanne est là pour vous accompagner dans tous vos projets immobiliers.
Annonce proposée par un Agent Commercial Partenaire.
Mentions légales
Terrain proposé par un partenaire foncier selon disponibilités et autorisation de publicité au prix de 99 000 €. Hors droit d'enregistrement et frais de notaire. Terrain + Maison proposés au prix de 250 234 € (Hors branchements et raccordements, papiers peints, peintures, revêtement de sol dans les chambres. Tarif modifiable sans préavis). Etiquette énergie : A. Différents modèles disponibles pour ce terrain. Assurances et garanties du constructeur (RC professionnelle, décennale, dommage ouvrage, garantie de remboursement de l'acompte, livraison à prix et délai convenu) : https://www.maisons-balency.fr/informations-legales/. HEXAOM Services est enregistré auprès de l'ORIAS en tant que Courtier en financement, Niveau 1, sous le numéro 14001345.Agence Maisons Balency de Moret-sur-Loing (77250)
- Téléphone :
- 09 78 81 26 91
- Adressse :
- 96 avenue de Fontainebleau
77250 Moret-sur-Loing, France
