Maison neuve à
Champigny-sur-Marne
(94500) Référence :
CM2286274_1
Prix du projet : Maison avec Terrain
prix 412 000 €
- 5 pièces
- 3 chambres
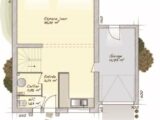
- Surface maison 90 m2
VENTE : maison F5 (90 m²) à Champigny-sur-Marne
MAISON 5 PIÈCES NEUVE
À vendre : à quelques minutes du RER E (station Les Boullereaux Champigny, 20 min de Paris), à Champigny-sur-Marne (94500), nous sommes heureux de vous présenter cette maison de 5 pièces de 90 m². Son intérieur propose trois chambres, une cuisine et une salle de bains.
Le terrain de la maison est de 183 m².
Cette maison comporte 2 niveaux. Elle est neuve.
Il y a plusieurs écoles (maternelle, élémentaire et collège) à moins de 10 minutes à pied, tout comme quatre crèches. Côté transports, on trouve quatre lignes de RER (E, A, D et C) ainsi que 26 gares à moins de 10 minutes en voiture. Il y a un tennis, une bibliothèque, des commerces, des boulangeries, trois supermarchés, des boucheries-charcuteries et deux bureaux de poste à proximité. Le marché Centre-Ville anime les environs.
Elle est à vendre pour la somme de 412 000 €.
Prenez contact avec notre agence (Christophe MONTANIER : 06-10-23-51-22) pour toute information sur cette maison ou sur les modalités de vente.
Annonce proposée par un Agent Commercial Partenaire.
Mentions légales
Terrain proposé par un partenaire foncier selon disponibilités et autorisation de publicité au prix de 180 000 €. Hors droit d'enregistrement et frais de notaire. Maison proposée, avec un contrat de construction de maison individuelle, dans le cadre de la loi du 19/12/1990, au prix de 232 000 € (Hors branchements et raccordements, papiers peints, peintures, revêtement de sol dans les chambres, qui sont chiffrés dans les travaux qui restent à charge du client. Tarif modifiable sans préavis). Étiquette énergie : A. Différents modèles disponibles pour ce terrain. Assurances et garanties du constructeur comprises (RC professionnelle, décennale, dommage ouvrage).Agence Maisons Balency de Saint-Maur-des-Fossés (94100)
- Téléphone :
- 01 87 36 85 37
- Adressse :
- 12 avenue de la république
94100 Saint-Maur-des-Fossés, France
