Maison neuve à
Champigny-sur-Marne
(94500) Référence :
AM2390005_1
Prix du projet : Maison avec Terrain
prix 542 000 €
- 6 pièces
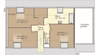
- 4 chambres
- Surface maison 117 m2
VENTE d'une maison de 6 pièces (117 m²) à Champigny-sur-Marne
MAISON 6 PIÈCES NEUVE
Proche de la station Les Boullereaux Champigny (Paris à 20 min avec le RER E), en vente à Champigny-sur-Marne (94500), votre agence Maisons Balency Saint-Maur-des-Fossés est ravie de vous présenter cette maison de 6 pièces de plain-pied de 117 m² et de 361 m² de terrain.
Conçue de plain-pied, elle comporte quatre chambres, une cuisine et deux salles de bains. La maison est neuve.
Il y a plusieurs écoles (maternelle, élémentaire et collège) à moins de 10 minutes à pied, tout comme quatre structures d'accueil pour la petite enfance. Niveau transports, on trouve les lignes de RER E, A, D et C ainsi que 26 gares à moins de 10 minutes en voiture. Il y a un tennis, une bibliothèque, des commerces, des boulangeries, trois supermarchés, deux supérettes et deux bureaux de poste à quelques minutes à peine. Enfin, le marché Centre-Ville anime les environs.
Elle est proposée à l'achat pour 542 000 €.
Prenez contact avec Aurelien MONTANIER (06-24-66-88-34) pour tout renseignement sur cette maison ou sur les démarches à suivre. Donnez vie à vos projets immobiliers avec Maisons Balency Saint-Maur-des-Fossés.
Annonce proposée par un Agent Commercial Partenaire.
Mentions légales
Terrain proposé par un partenaire foncier selon disponibilités et autorisation de publicité au prix de 200 000 €. Hors droit d'enregistrement et frais de notaire. Terrain + Maison proposés au prix de 542 000 € (Hors branchements et raccordements, papiers peints, peintures, revêtement de sol dans les chambres. Tarif modifiable sans préavis). Etiquette énergie : A. Différents modèles disponibles pour ce terrain. Assurances et garanties du constructeur (RC professionnelle, décennale, dommage ouvrage, garantie de remboursement de l'acompte, livraison à prix et délai convenu) : https://www.maisons-balency.fr/informations-legales/. HEXAOM Services est enregistré auprès de l'ORIAS en tant que Courtier en financement, Niveau 1, sous le numéro 14001345.Agence Maisons Balency de Saint-Maur-des-Fossés (94100)
- Téléphone :
- 01 87 36 85 37
- Adressse :
- 12 avenue de la république
94100 Saint-Maur-des-Fossés, France
