Maison neuve à
Champs-sur-Marne
(77420) Référence :
CM2332983_2
Prix du projet : Maison avec Terrain
prix 549 000 €
- 6 pièces
- 4 chambres
- Surface maison 98 m2
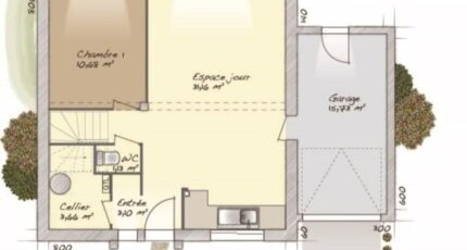
VENTE d'une maison de 6 pièces (98 m²) à Champs-sur-Marne
MAISON 6 PIÈCES NEUVE
En vente : proche de la station Noisy-Champs (Paris à 15 min par le RER A), nous vous présentons cette maison de 6 pièces de 98 m² à Champs-sur-Marne (77420).
C'est une maison de 2 niveaux. Son intérieur comporte quatre chambres, une cuisine et une salle de bains. La maison est neuve.
Le terrain du bien est de 400 m².
Il y a tous les types d'établissements scolaires (de la maternelle au lycée) à moins de 10 minutes à pied, cinq structures d'accueil pour la petite enfance, tout comme deux établissements du supérieur juste à côté : l'École nationale des ponts et chaussées et l'École nationale des sciences géographiques. Niveau transports en commun, on trouve le RER A et E ainsi que 21 gares à moins de 10 minutes en voiture. Il y a un tennis, des commerces, quatre boulangeries, deux supérettes, un bureau de poste et quatre épiceries dans les environs.
Elle est à vendre pour la somme de 549 000 €.
Contactez notre agence (Christophe MONTANIER : 06-10-23-51-22) pour tout renseignement sur la maison, sur les démarches à suivre ou sur les modalités de vente. Maisons Balency Saint-Maur-des-Fossés est là pour vous accompagner dans tous vos projets immobiliers.
Annonce proposée par un Agent Commercial Partenaire.
Mentions légales
Terrain proposé par un partenaire foncier selon disponibilités et autorisation de publicité au prix de 300 000 €. Hors droit d'enregistrement et frais de notaire. Terrain + Maison proposés au prix de 249 000 € (Hors branchements et raccordements, papiers peints, peintures, revêtement de sol dans les chambres. Tarif modifiable sans préavis). Etiquette énergie : A. Différents modèles disponibles pour ce terrain. Assurances et garanties du constructeur (RC professionnelle, décennale, dommage ouvrage, garantie de remboursement de l'acompte, livraison à prix et délai convenu) : https://www.maisons-balency.fr/informations-legales/. HEXAOM Services est enregistré auprès de l'ORIAS en tant que Courtier en financement, Niveau 1, sous le numéro 14001345.Agence Maisons Balency de Saint-Maur-des-Fossés (94100)
- Téléphone :
- 01 87 36 85 37
- Adressse :
- 12 avenue de la république
94100 Saint-Maur-des-Fossés, France
