Maison neuve à
Charleval (27380) Référence : SH2304703_2

Prix du projet : Maison avec Terrain

prix 235 000 €

  • 6 pièces
  • 4 chambres
  • Surface maison 89 m2

VENTE d'une maison T6 (89 m²) à Charleval
CENTRE-VILLE - MAISON 6 PIÈCES NEUVE
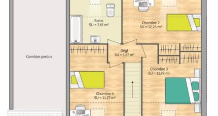
En vente : à 23 km de Rouen, dans le centre-ville de Charleval (27380), nous vous proposons cette maison de 6 pièces de 89 m². Son intérieur se divise en quatre chambres, une cuisine et une salle de bains.
Le terrain de cette maison est de 1 561 m².
Cette maison comporte 2 niveaux. Elle est neuve.
L'École Élémentaire Jules Verne et l'École Maternelle Daniel Bellavoine sont implantées à moins de 10 minutes à pied. Les autoroutes A13 et A154 et la nationale N28 sont accessibles à moins de 20 km. On trouve des commerces, deux boulangeries, un supermarché, un bureau de poste et deux boucheries-charcuteries dans les environs.
Elle est proposée à l'achat pour 235 000 €.
N'hésitez pas à prendre contact avec notre agence (HOTTE Sébastien : 06-15-58-21-40) pour toute question sur le bien. Maisons Balency Louviers est là pour vous accompagner à toutes les étapes de l'achat.

Annonce proposée par un Agent Commercial Partenaire.

Mentions légales

Terrain proposé par un partenaire foncier selon disponibilités et autorisation de publicité au prix de 75 000 €. Hors droit d'enregistrement et frais de notaire. Maison proposée, avec un contrat de construction de maison individuelle, dans le cadre de la loi du 19/12/1990, au prix de 160 000 € (Hors branchements et raccordements, papiers peints, peintures, revêtement de sol dans les chambres, qui sont chiffrés dans les travaux qui restent à charge du client. Tarif modifiable sans préavis). Étiquette énergie : A. Différents modèles disponibles pour ce terrain. Assurances et garanties du constructeur comprises (RC professionnelle, décennale, dommage ouvrage).

Contactez l'agence de Louviers

02 32 51 43 53

    * Champs obligatoires

    Vos informations sont traitées par HEXAOM et transmises à un conseiller commercial qui vous contactera afin de répondre à votre demande. Les plans et images présentés sur notre site sont la propriété d’HEXAOM et ne peuvent pas être reproduits sans son accord. Pour retrouver notre politique de protection des données personnelles et exercer vos droits conformément à la « loi informatique et liberté » cliquez-ici.