Maison neuve à
Châtres
(77610) Référence :
PM2308421_1
Prix du projet : Maison avec Terrain
prix 484 000 €
- 6 pièces
- 5 chambres
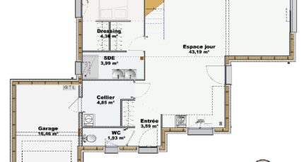
- Surface maison 114 m2
Châtres, en Île de France (77610) : Superbe Demeure Haut-de-gamme en Bois de 120 m² sur une parcelle viabilisée de 601 m².
Les Maisons Balency d'Ormoy vous proposent une construction écologique qui suivra rigoureusement les dernières normes environnementales RE2020 au sein d'un lotissement sécurisé de 4 lots.
Imaginée pour allier écologie, performance et confort, cette maison en bois dépasse les standards actuels grâce à :
- Une isolation intérieure et extérieure renforcée (R = 6,56 m².C°/W)
- Zéro pont thermique et un confort optimal été comme hiver
- Un chantier rapide et propre : jusqu'à 65 % de déchets en moins
- Une empreinte carbone réduite de 60 % et un matériau 2 fois plus isolant que le béton
- L'utilisation de bois issus de forêts éco-gérées, sans contrainte d'entretien
Avec une conception et un assemblage industrialisés (murs, plancher, charpente, menuiseries), votre maison est montée en une journée sur chantier, pour un gain de temps et des économies sur vos frais intercalaires.
Le projet est estimé à 484 000 € (terrain viabilisé + maison, hors frais annexes).
Découvrez notre ligne bois et réalisez votre projet avec l'accompagnement complet de Maisons BALENCY : étude, recherche de terrain, démarches administratives.
Pour cela, appelez notre Agence d'Ormoy au 06 49 43 56 27 !
Annonce proposée par un Agent Commercial Partenaire.
Mentions légales
Terrain proposé par un partenaire foncier selon disponibilités et autorisation de publicité au prix de 171 000 €. Hors droit d'enregistrement et frais de notaire. Maison proposée, avec un contrat de construction de maison individuelle, dans le cadre de la loi du 19/12/1990, au prix de 313 000 € (Hors branchements et raccordements, papiers peints, peintures, revêtement de sol dans les chambres, qui sont chiffrés dans les travaux qui restent à charge du client. Tarif modifiable sans préavis). Étiquette énergie : A. Différents modèles disponibles pour ce terrain. Assurances et garanties du constructeur comprises (RC professionnelle, décennale, dommage ouvrage).Agence Maisons Balency de Ormoy (91540)
- Téléphone :
- 09 67 70 15 81
- Adressse :
- 23 chemin de Tournenfils - 1er étage
91540 Ormoy, France
