Maison neuve à
Chaumont-en-Vexin
(60240) Référence :
MU2311136_4
Prix du projet : Maison avec Terrain
prix 225 900 €
- 5 pièces
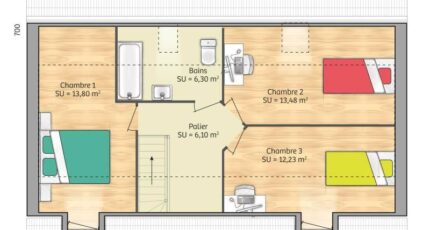
- 3 chambres
- Surface maison 80 m2
Chaumont-en-Vexin : maison de 5 pièces (80 m²) en vente
IDÉALEMENT SITUÉE - MAISON 5 PIÈCES NEUVE
À deux pas du Transilien J (1 h de Paris), en vente idéalement située dans Chaumont-en-Vexin (60240), Maisons Balency Baillet-en-France vous propose cette maison de 5 pièces de 80 m² et de 659 m² de terrain.
C'est une maison de 2 niveaux. Elle se divise en trois chambres, une cuisine et une salle de bains. Cette maison est neuve.
La maison est située dans un secteur convoité. Il y a l'École Maternelle Roger Blondeau, l'École Élémentaire Roger Blondeau et le Collège Saint-Exupéry à moins de 10 minutes à pied. Côté transports en commun, on trouve la gare Chaumont-en-Vexin dans les environs. On trouve un accès à la nationale N31 à 17 km et Cergy se situe à 29 km. Il y a quatre commerces, une boulangerie, deux supermarchés, un bureau de poste et une boucherie-charcuterie à proximité.
Son prix de vente est de 225 900 €.
Prenez contact avec notre agence (Mylann URBANSKY : 06-23-32-28-23) pour obtenir de plus amples informations sur la propriété ou sur les modalités de vente. Maisons Balency Baillet-en-France vous accompagne à toutes les étapes de votre projet et dans toutes vos démarches.
Annonce proposée par un Agent Commercial Partenaire.
Mentions légales
Terrain proposé par un partenaire foncier selon disponibilités et autorisation de publicité au prix de 75 900 €. Hors droit d'enregistrement et frais de notaire. Maison proposée, avec un contrat de construction de maison individuelle, dans le cadre de la loi du 19/12/1990, au prix de 150 000 € (Hors branchements et raccordements, papiers peints, peintures, revêtement de sol dans les chambres, qui sont chiffrés dans les travaux qui restent à charge du client. Tarif modifiable sans préavis). Étiquette énergie : A. Différents modèles disponibles pour ce terrain. Assurances et garanties du constructeur comprises (RC professionnelle, décennale, dommage ouvrage).Agence Maisons Balency de Baillet-en-France (95560)
- Téléphone :
- 01 34 46 05 23
- Adressse :
- 81 rue de Paris
95560 Baillet-en-France, France
